cancel
Showing results for 
Search instead for 
Did you mean: 
EN
cancel
Showing results for 
Search instead for 
Did you mean: 
heathldesign
Advisor

Real world door / window installation for RO height

Hello All,

i'm sure this must have been discussed, but my search hasn't found it. i can't find a way to create the real world RO for doors and windows. the interior door slab is never flush with the bottom of the jamb, there is always an undercut. so in the real world the door unit is installed off the floor sheathing by the thickness of the finish flooring, no problem, just raise the elevation of the door. but the door slab needs to be higher than this for the undercut for ventilation. if i raise the elevation of the door further, the casing goes up with it so in 3D it looks wrong, and in section it's also wrong. i noticed that in windows there is a setting to extend the casings down past the stool and apron. why, i don't know. but i don't see this setting for the doors. windows also don't sit right down on the sub sill, there are shims and in some cases a drainage plane. is there a setting i'm missing?


Screenshot 2022-12-23 at 11.41.26.png
MAC Studio 2022 M1 Max, 32 GB RAM, 10 cores, AC27 5030 Apple Silicon USA Sequoia 15.3. AC 27, 6000 USA
7 Replies 7
Marc H
Advisor

For design intent, you can refer to a set of door details.  If this is for visualization, perhaps you can create a custom door leaf (slab) that will have such a clearance.

“The best thing about the future is that it comes one day at a time.” - Abraham Lincoln

AC28 USA on 16” 2019 MBP (2.4GHz i9 8-Core, 32GB DDR4, AMD Radeon Pro 5500M 8G GDDR5, 500GB SSD, T3s, Trackpad use) running Tahoe OS + extended w/ (2) 32" ASUS ProArt PAU32C (4K) Monitors
heathldesign
Advisor

ahhh. too bad. could/should be a simple additional parameter. perhaps i'll add it to the wish list.

MAC Studio 2022 M1 Max, 32 GB RAM, 10 cores, AC27 5030 Apple Silicon USA Sequoia 15.3. AC 27, 6000 USA
Marc H
Advisor

There is a threshold parameter. If it does not suit your purpose, you might edit the door GDL parameter accordingly. There also may be such a parameter variable in a third-party door collection.

“The best thing about the future is that it comes one day at a time.” - Abraham Lincoln

AC28 USA on 16” 2019 MBP (2.4GHz i9 8-Core, 32GB DDR4, AMD Radeon Pro 5500M 8G GDDR5, 500GB SSD, T3s, Trackpad use) running Tahoe OS + extended w/ (2) 32" ASUS ProArt PAU32C (4K) Monitors
heathldesign
Advisor

Thanks Marc H, GDL editing is beyond me at this point. perhaps one day it will bother me enough to go there.

 

MAC Studio 2022 M1 Max, 32 GB RAM, 10 cores, AC27 5030 Apple Silicon USA Sequoia 15.3. AC 27, 6000 USA
DGSketcher
Legend

It’s another good example of programmers lacking construction knowledge. The door should be capable of being set to standard leaf size and adding components and tolerances, but as already pointed out there doesn’t seem to be a way to allow for under door ventilation gaps that correct the door head and keep the leaf size for correct scheduling. 

Apple iMac Intel i9 / macOS Sonoma / AC27UKI (most recent builds.. if they work)
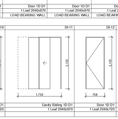
AllanP
Expert

I don't believe you,

the next you will say that programmers don't know that the installation size for a sliding door requires the cavity as well,

or if its in a load bearing wall that requires a lintel..

that's just crazy talk...

AllanP_1-1672720933542.png

 

 

I have been using ArchiCAD continually since ArchiCAD 4.5
Member of Architalk since 2003, but missed the migration from Architalk to Graphisoft Communities. Melbourne, Australia
DGSketcher
Legend

😂I assume you are familiar with the acronym RTFM, it is generally used as a suggestion to swot up on a relevant topic within a manual, not read the whole manual like War & Peace! We will all be coming to you for answers soon!!! 😎

Apple iMac Intel i9 / macOS Sonoma / AC27UKI (most recent builds.. if they work)

Didn't find the answer?

Check other topics in this Forum

Back to Forum

Read the latest accepted solutions!

Accepted Solutions

Start a new conversation!