cancel
Showing results for 
Search instead for 
Did you mean: 
EN
cancel
Showing results for 
Search instead for 
Did you mean: 
rob2218
Enthusiast

AC17-stock stairs with crazy orange hatch pattern

Stairs...in AC17.
OUt of box stairs have this crazy colored "hatch pattern" in 2D.
where can I:
a) change the hatch pattern so it's not so obnoxious.
b) why do the stairs come like this Out of the BOX!!!!

stair-background-pattern-small.jpg
...Bobby Hollywood live from...
i>u
Edgewater, FL!
SOFTWARE VERSION:
Archicad 22, Archicad 23
Windows7 -OS, MAC Maverick OS
6 Replies 6
Karl Ottenstein
Moderator Emeritus
Rob,

I think you're confused about what 'out of the box' means? Or, I'm missing something totally.

The 'out of box' solution, is a fresh project made with the default templates that are delivered with AC. In the case of the US version, there is a default residential and default commercial template.

The template, or project file, contains the attributes that define pen colors, fill types, etc... which are all determined by their index numbers.

The stairs in the library of a fresh 17 project look fine to me.

In your screenshot, you are showing custom stairs created with Stairmaker. Were these created in 17? Is the file that you created them in a fresh-from-Graphisoft-template PLN file in 17?

If the answer is no to that, then you need to use Attribute Manager to discover where the attributes in your objects differs from those in your PLN/project file... or differs from what GS has as the defaults in the their template files, which is what every library part expects to see. Open Attribute Manager and you can go through all of your attributes by index number in the left panels... and click the 'open' button on the right to open a standard AC 17 template file on the right to see what is different. (Click the # headers to sort by index number so you can just scroll down to find discrepencies.)

PS How can you call your illustrated stair a 'stock stair' when it is in your embedded library with a custom name and not in the default AC 17 library?
Vote for Wish: Copy/Paste in 3D

AC 29 USA and earlier   •   hardware key   •   macOS Taho 26.5 MacBook Pro M2 Max 12CPU/30GPU cores, 32GB
rob2218
Enthusiast
Will definitely look into per your suggestions.
Yes...this office (I just started here a week ago and was led to believe it was a "stock OTB" starting point but I now see based on your explanation it is not an out-of-the box starting point.

thanks for your suggestions.
...Bobby Hollywood live from...
i>u
Edgewater, FL!
SOFTWARE VERSION:
Archicad 22, Archicad 23
Windows7 -OS, MAC Maverick OS
Karl Ottenstein
Moderator Emeritus
You bet. Just to clarify what I said earlier... lest any readers think I'm recommending the out-of-the-box templates: I'm not (other than completely new users who are learning).

There is lots discussed on the forums about templates and template/attribute management - much of it in clear detail by Link.

A general rule of thumb is that a firm's template for a fresh project is, in some sense, their last, best project with the model/detail removed. That is, all of the views, drawings, layouts, publisher sets all set up so that as one begins to model, the documents flow following the firm's standard document practices.

Migrating a template from release to release can be a little bit of work (typical), or a lot of work (migrating from 9/earlier to 10 or higher, or migrating from 16/earlier to 17 with Building Materials).

Regardless, one common thing is Attribute management and how objects in the standard library appear in a fresh project. It's always worth comparing all attributes from a firm's project template against those in the default out-of-box template each time a new release is installed to discover if there is anything that will cause library objects in the new library to appear differently. If migrating a project, rather than a template, it is often best to leave things alone until that project is closed out.
Vote for Wish: Copy/Paste in 3D

AC 29 USA and earlier   •   hardware key   •   macOS Taho 26.5 MacBook Pro M2 Max 12CPU/30GPU cores, 32GB
Link
Graphisoft Partner
Graphisoft Partner
Karl wrote:
You bet. Just to clarify what I said earlier... lest any readers think I'm recommending the out-of-the-box templates: I'm not (other than completely new users who are learning).
I agree. I don't understand how anyone can work efficiently using an out of the box or canned template without having to customize drastically.

Any template worth it's salt will not only have water-tight attribute management, but also ensure all defaults are set up perfectly, storey structure is accurate and comprehensive, include all view points and schedules, have a fully pre-linked project map>view map>layout book>publisher set workflow, have all layouts set up with personalized and automatic titleblock information, account for all specific printer output as well as other consultant and general publishing/exporting considerations, favorites are established, teamwork protocols are set, etc, etc etc. I have about a ten page checklist for creating new templates.

As with anything, the more you want to get out of it, the more you'll need to put into it at the start. And continue to tweak...
Karl wrote:
There is lots discussed on the forums about templates and template/attribute management - much of it in clear detail by Link.
Templates are clearly my passion!
Karl wrote:
Regardless, one common thing is Attribute management and how objects in the standard library appear in a fresh project. It's always worth comparing all attributes from a firm's project template against those in the default out-of-box template each time a new release is installed to discover if there is anything that will cause library objects in the new library to appear differently. If migrating a project, rather than a template, it is often best to leave things alone until that project is closed out.
A good tip here is to export all the attributes of each project out as an Attribute Manager File (*.txt) and then copy/paste into an Excel spreadsheet for easy comparison!

Cheers,
Link.
Bill
Booster
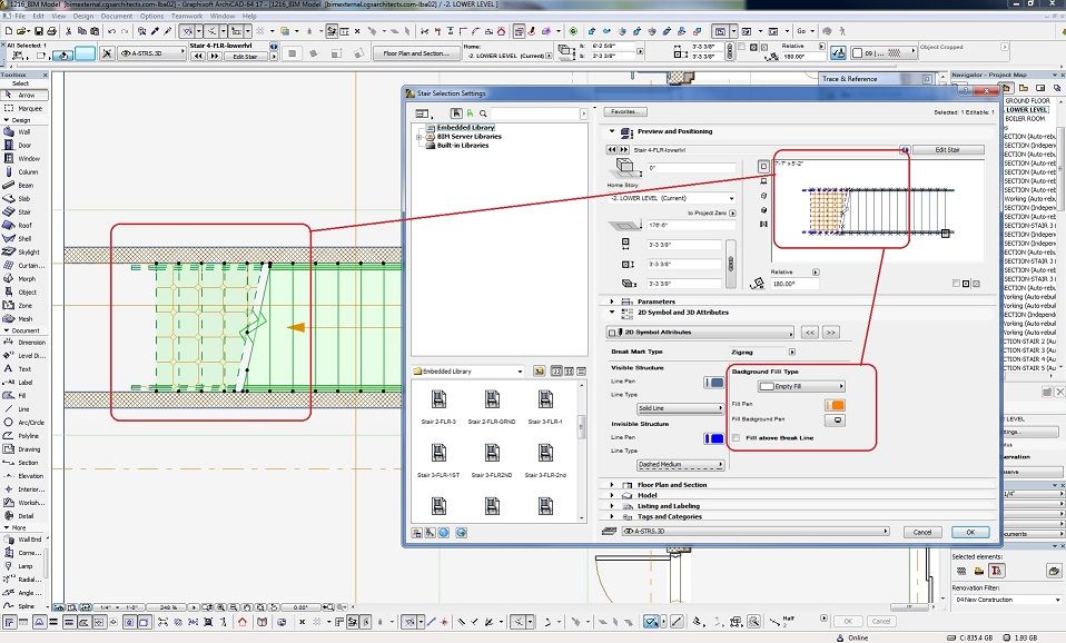
One option for stairs that I constantly forget about is the fact that there are separate 2D Representation options for portion of the stair above the home story (IF "story sensitive" is checked). I have spent hours trying to determine why a stair won't show up correctly, and this has sometimes been the culprit!
Bill Szustak RA

Principal, Springboard Design

ArchiCAD 25, macOS Ventura 13.4.1
rob2218
Enthusiast
Thanks Bill,
will certainly look into your suggestion as well.
Much appreciated.
...Bobby Hollywood live from...
i>u
Edgewater, FL!
SOFTWARE VERSION:
Archicad 22, Archicad 23
Windows7 -OS, MAC Maverick OS

Still looking?

Browse more topics

Back to forum

See latest solutions

Accepted solutions

Start a new discussion!