cancel
Showing results for 
Search instead for 
Did you mean: 
EN
cancel
Showing results for 
Search instead for 
Did you mean: 
rob2218
Enthusiast

INTERIOR ELEVATIONS - seeing thru walls?

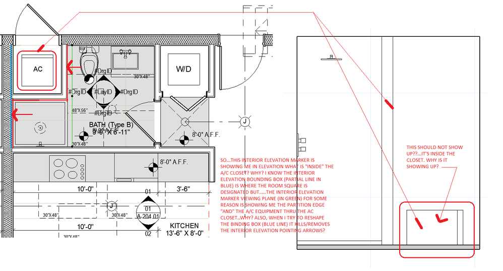
see attached.

INTERIOR-ELEVATION-CUTTING PLANE.png
...Bobby Hollywood live from...
i>u
Edgewater, FL!
SOFTWARE VERSION:
Archicad 22, Archicad 23
Windows7 -OS, MAC Maverick OS
7 Replies 7
rob2218
Enthusiast
I'm noticing that every single interior elevation boundary box that is drawn to a room that is not a perfect rectangle shows this glitch.

Now...again, when I try to zig-zag the binding box the interior elevation arrow disappear and are not longer functional.

If I leave the binding box as a "perfect rectangle" (now..what room is a perfect rectangle??...none) but if I leave the binding boundary box as perfect rectangle....the interior elevation that is generated doesn't read properly....what gives here folks??

GS?..any advice? I despise using "white-out cover fills" to bandage these strange viewing glitches.
...Bobby Hollywood live from...
i>u
Edgewater, FL!
SOFTWARE VERSION:
Archicad 22, Archicad 23
Windows7 -OS, MAC Maverick OS
Check your marker settings under "Model Display". I'm guessing that "Exclude view blocking walls" is checked.
Richard
--------------------------
Richard Morrison, Architect-Interior Designer
AC26 (since AC6.0), Win10
rob2218
Enthusiast
"exclude view blocking walls" is checked....what should it be?
should it be unchecked or checked?
...Bobby Hollywood live from...
i>u
Edgewater, FL!
SOFTWARE VERSION:
Archicad 22, Archicad 23
Windows7 -OS, MAC Maverick OS
It would have been quicker to uncheck and see the results than respond to this post!

If it's checked, it means you have "x-ray eyes" and will see through any wall that stands in your way. Here, that's not what you want.
Richard
--------------------------
Richard Morrison, Architect-Interior Designer
AC26 (since AC6.0), Win10
rob2218
Enthusiast
geez....why even have this feature in an interior elevation tag?
I mean..really?

What would be the benefit of being able to "see/show" what is on the other side of a wall???

it also appears that the default has the 'check' ON.....which you'd think would be defaulted to having the 'check' OFF...
...Bobby Hollywood live from...
i>u
Edgewater, FL!
SOFTWARE VERSION:
Archicad 22, Archicad 23
Windows7 -OS, MAC Maverick OS
There are times you'll find it useful, for example when you want to show a wall beyond a shower enclosure that you've made with thin walls.

But you can create your own defaults, you know. However, I agree that this particular marker has a trap for the unwary.
Richard
--------------------------
Richard Morrison, Architect-Interior Designer
AC26 (since AC6.0), Win10
rob2218
Enthusiast
you are a wise man Richard.
thanks.....for teaching me something new.
I remembered that these interior elevations had some sort of trick...but it's one of those "check boxes" that you 'set and forget'.....that and my advanced years don't help.

but in all seriousness....thank you for your insight.
...Bobby Hollywood live from...
i>u
Edgewater, FL!
SOFTWARE VERSION:
Archicad 22, Archicad 23
Windows7 -OS, MAC Maverick OS

Still looking?

Browse more topics

Back to forum

See latest solutions

Accepted solutions

Start a new discussion!