cancel
Showing results for 
Search instead for 
Did you mean: 
EN
cancel
Showing results for 
Search instead for 
Did you mean: 
Anonymous
Not applicable

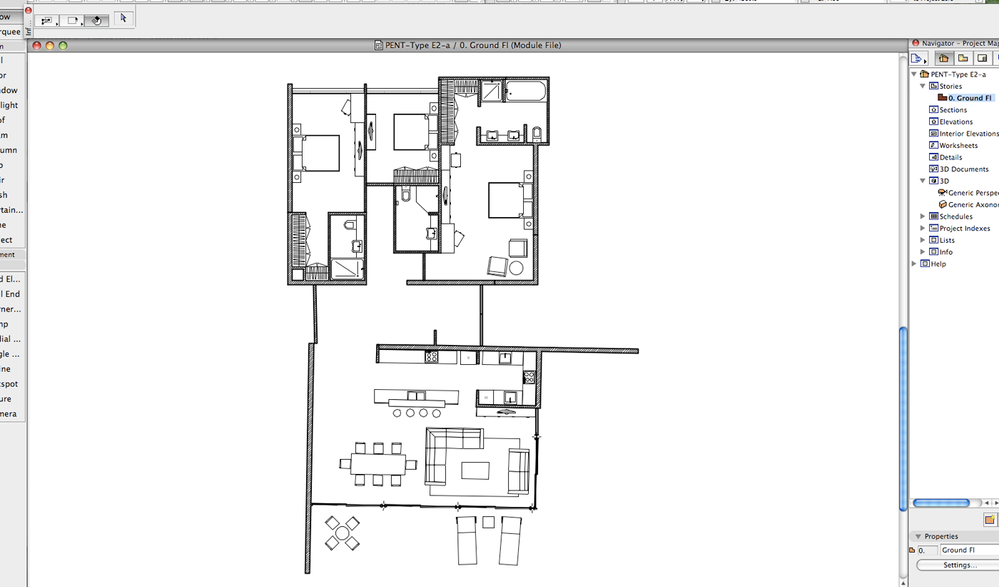
MOD file turn BLACK ?

Hi,
My file .MOD turn into BLACK every time I save it. Each time I have to re-chose my PEN SET.

Does anybody know the reason and solution to it ?

Please advise

P.s. Please see the attached.

Picture 1.png
4 Replies 4
Erich
Booster
From your screen shot it appears that you are working with views from your Project Map. If you want to your settings to be saved with the view you are working on you should be working from your View Map instead. There you can save views with pen settings, scale, layer combinations, etc.
Erich

AC 19 6006 & AC 20
Mac OS 10.11.5
15" Retina MacBook Pro 2.6
27" iMac Retina 5K
Anonymous
Not applicable
Hi,
Thanks.
I know that I can do with View Map.
However, I would like to find out what went wrong with my .MOD: it turns into BLACK lines after saving although the pen set is still the same. Each time I need to switch to another penset and switch back again to my preferred penset.

When I work with .PLN file, it is ok.
Does anyone know the problem and solution to it (within project map)

cheers
Erika Epstein
Enthusiast
This is a known bug when creating modules. Just click on the open the Pen attributes
Options>Element Attributes>Pens
and the pen set will revert to the correct pen set.
Erika
Architect, Consultant
MacBook Pro Retina, 15-inch Yosemite 2.8 GHz Intel Core i7 16 GB 1600 MHz DDR3
Mac OSX 10.11.1
AC5-18
Onuma System

"Implementing Successful Building Information Modeling"
Anonymous
Not applicable
Hi...
This is what 've done.
It seems this is the only solution right now
Anyway...thanks for all...
If anybody knows other work-around or how to fix it permenant, please share...
Cheers,

Still looking?

Browse more topics

Back to forum

See latest solutions

Accepted solutions

Start a new discussion!