cancel
Showing results for 
Search instead for 
Did you mean: 
EN
cancel
Showing results for 
Search instead for 
Did you mean: 
Anonymous
Not applicable

beam intersection

Hello.
I hereby attach two pictures, a plan and a perspective. In the 3D, the beams intersect rather neatly, but in plan they do not. The dotted lines defining one beam do not intersect with the lines of the other beam. Why is this, does anybody know?
Thank you.

1.jpg
4 Replies 4
Laszlo Nagy
Community Admin
Community Admin
Can you also attach the perspective.
Only the Floor Plan is visible at the moment.
FYI: You can attach only one image per post.
Loving Archicad since 1995 - Find Archicad Tips at x.com/laszlonagy
AMD Ryzen9 5900X CPU, 64 GB RAM 3600 MHz, Nvidia GTX 1060 6GB, 500 GB NVMe SSD
2x28" (2560x1440), Windows 10 PRO ENG, Ac20-Ac29
Anonymous
Not applicable
Hello.
This is how the intersection looks in 3d.
Laszlo Nagy
Community Admin
Community Admin
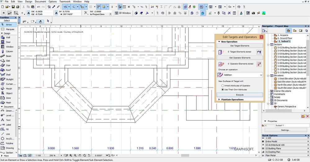
Are you sure that the end of one Beam is in the same point where the start of the connecting Beam is?
You can select any twoconnecting Beams and use the Intersect command to make sure they correctly intersect. The command can be used in 3D as well.
Loving Archicad since 1995 - Find Archicad Tips at x.com/laszlonagy
AMD Ryzen9 5900X CPU, 64 GB RAM 3600 MHz, Nvidia GTX 1060 6GB, 500 GB NVMe SSD
2x28" (2560x1440), Windows 10 PRO ENG, Ac20-Ac29
Anonymous
Not applicable
It worked as soon as the ending and starting points of two intersecting beams were the same. Thank you

Still looking?

Browse more topics

Back to forum

See latest solutions

Accepted solutions

Start a new discussion!