cancel
Showing results for 
Search instead for 
Did you mean: 
cancel
Showing results for 
Search instead for 
Did you mean: 
Modeling
About Archicad's design tools, element connections, modeling concepts, etc.

roof eave profiles

Anonymous
Not applicable
I am looking to make slightly detailed roof eave profiles on schematic sections and models, without getting into roofmaker with rafters and beams. Any ideas please? Here's an image- The right hand version is what I would like to do.

quest.jpg
6 REPLIES 6
Anonymous
Not applicable
Caitlin,
If you are in AC 9 you either have to make three roofs one on top
of the other or buy or make an eave soffit object.

If you are in AC 10 where co-planer tool elements clean-up
with each other you can model your soffit with roofs.
One for the main roof, one for the soffit, and one for soffit shoulder.

Also, it has been suggested that in AC 10, eave soffits can be made
using complex profiles but I don't know if the joint with the main
roof will clean up with the profile.

Peter Devlin
Anonymous
Not applicable
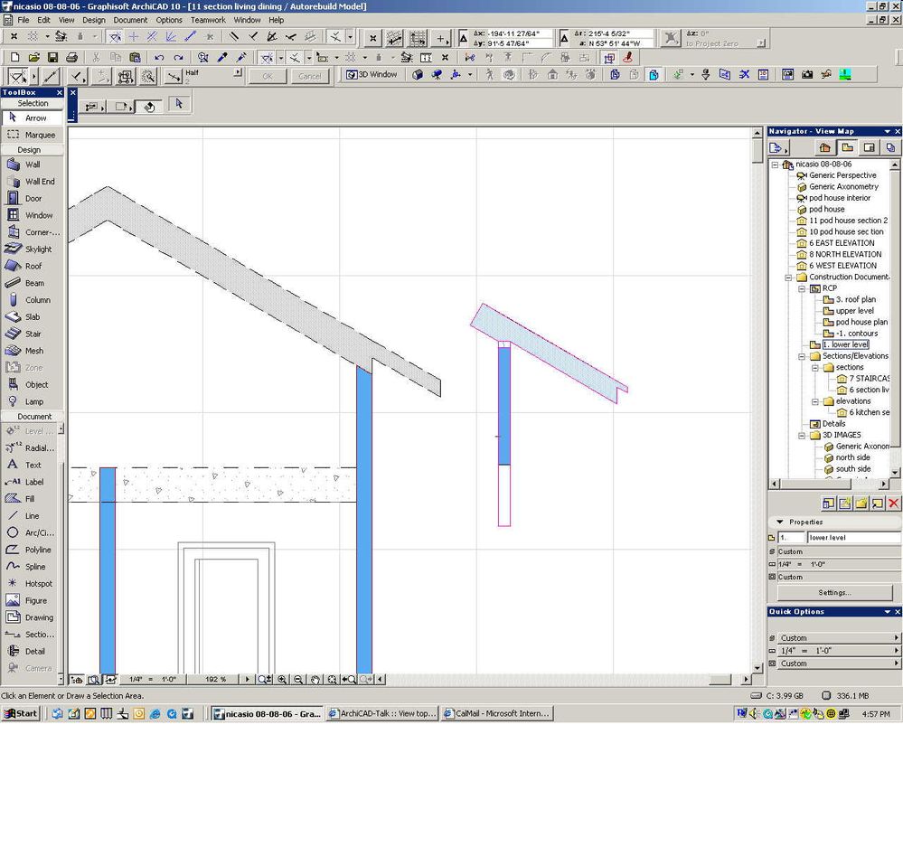
I have used the profile wall tool for roof eaves and was quite happy. It's great for anything you want to "extrude" in a section view. Heres an eave with no 2D embellishment and the entire eave is only one "wall".
Anonymous
Not applicable
Mike,
How does it look in the 3D window ?
Does the joint between the roof edge and
the profile edge clean-up ?
Thanks,
Peter Devlin
Anonymous
Not applicable
If I play around with the align 3d texture I can get close. Selecting both the roof and the eave and setting the origin to a similar point did not give the desired result. Heres an image that shows one roof that has been "adjusted" and another one that has not. I have not played with it a lot, but it seems that archicad might have problems distinguishing some of the different textures defined by the profile wall.
Anonymous
Not applicable
Hello Mike,
Thanks for posting back.
I take it that the roof edge and the profile edge
do not clean-up in the 3D window so you have
to hide the joint with a material that has a fill and
a texture associated with it.
I am impressed with the sectional detail you have
achieved with the your complex profile.
Is there any way to use complex profiles to make
a rake soffit perhaps with a profiled inclined beam ?
Thanks,
Peter Devlin
Anonymous
Not applicable
You can get it to clean up in 3D but it seems to be a bit of trial and error versus setting a common origin and be done. In an ideal world there would be no messing with the origin unless your texture demanded it. Maybe in 11. I would imagine your barge boards could be achieved with a profiled beam - how you detail it near the eave will be the tricky part. The no mess sections and elevations are nice for this project that I modeled the eaves with the profiled wall.