cancel
Showing results for 
Search instead for 
Did you mean: 
EN
cancel
Showing results for 
Search instead for 
Did you mean: 
arlouper
Contributor

Achicad 26 door on floor plan

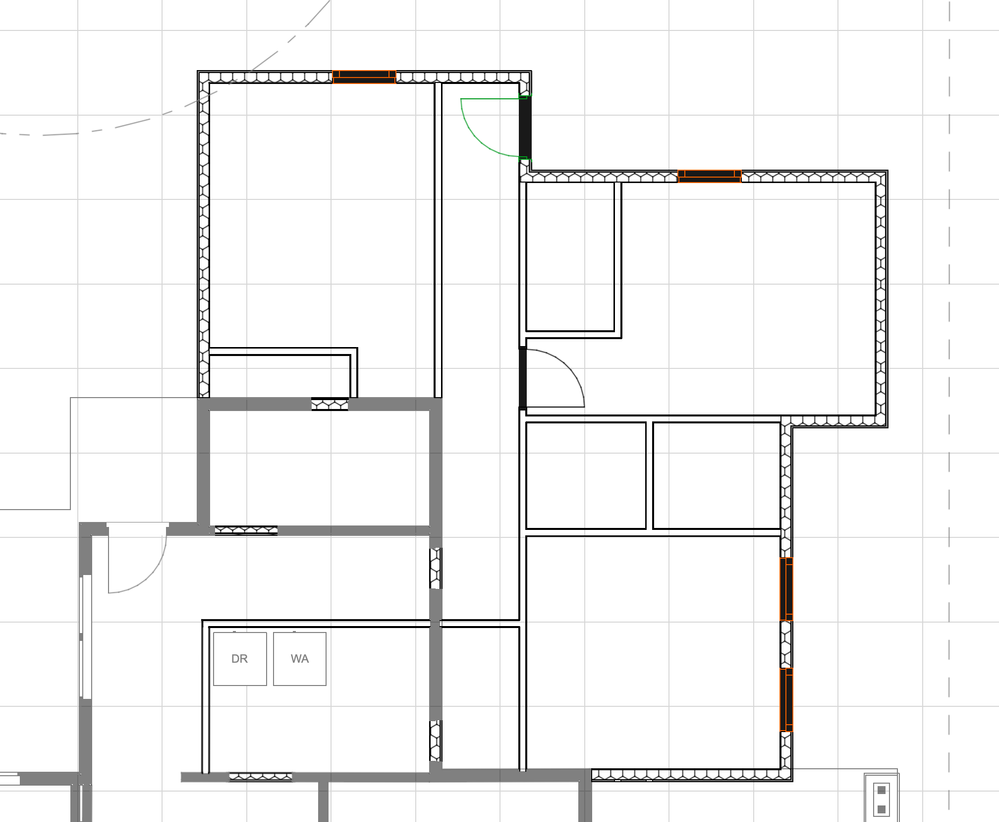
We just switched to A26. When I place a door or window in a new wall it appears black. Seems like a graphic override or model view issue or something but I can't figure it out. Screenshot attached.Screen Shot 2023-10-18 at 1.35.34 PM.png

4 Replies 4
Gerry Leonor
Advisor

have you checked your pens to see that it's still using the pen sets with the correct colour & settings?

 

we don't know what AC version you guys switched from so it's hard to figure out what settings you've accidentally hidden -- this can be easily missed if you've simply brought in your older Work Environment straight into 26. the new tools & their palettes will be hidden because of your old Work Environment settings.

 

check the settings of either the walls and/or doors & windows to see if they still have the correct settings. perhaps you used the door/window Favourites from the older version & their settings may have changed in the transition.

 

the information here is quite sparse.

AC27 | Win11 | 64Gb RAM | Intel i7 13700F | RTX 4070 Ti
>come join our unofficial Discord server
https://discord.gg/XGHjyvutt8
Barry Kelly
Moderator

You mention a 'new' wall, so I would check your renovation filter settings.

 

Barry.

One of the forum moderators.
Versions 6.5 to 27
i7-10700 @ 2.9Ghz, 32GB ram, GeForce RTX 2060 (6GB), Windows 10
Lenovo Thinkpad - i7-1270P 2.20 GHz, 32GB RAM, Nvidia T550, Windows 11
arlouper
Contributor

renovation filter seems to be it because I now realize the same thing happens to the doors and windows on the existing layer too.... but I can't figure out what to change.

arlouper
Contributor

I fixed it. It was the floor plan and section tab of the window/door sections and plan/symbol fill background.

Still looking?

Browse more topics

Back to forum

See latest solutions

Accepted solutions

Start a new discussion!