cancel
Showing results for 
Search instead for 
Did you mean: 
cancel
Showing results for 
Search instead for 
Did you mean: 
Documentation
About Archicad's documenting tools, views, model filtering, layouts, publishing, etc.

ArchiCAD-placed Dimensions?

Anonymous
Not applicable
Here's a fun one: On Friday, we plotted and sent out our permit set for an elaborate house project, and all the dimensions I had placed were fine, exactly as we wanted. I was the person in charge of all the dimensioning, and no changes had been made to the model or the dimensions for ~4 days prior to Friday. I am attaching a screenshot with what the dimension plan looked like then. The dimension lines are blue.

Then, on Wednesday morning, I find that there are many new, bizarre dimensions (new dimensions attached to previously existing strings, and entirely new dimension strings), the most obvious ones are placed at 45 degrees and dimensioning the centerlines of doors, etc on opposite sides of the project. (Another picture coming of what's there now) Nobody placed these dimensions, they just appeared.

In our post-submittal bliss between Friday and Wednesday, no one on the team (it is a teamworked project) made any kind of global changes, and I'm sure nobody even opened up a dimension plan view. What's going on?

In addition, some of the dimensions have gone from reading, for example, 2'-0" to showing 1'-11 7/8" or 2'-0 1/8". No plan or modeling changes.

I'm looking for suggestions to restore the dimensions back to how they were, without the weird new ones and without the 1/8" fractions. My dimension tolerance was set to 1/4" for the view, too.... Maybe one of you "5-house" gurus can help? Let me know if you need more information or more pictures; I have more. It's kinda cool, like my AC10 has become HAL9000 and is dimensioning how it feels is best!

Fortunately the dimensions plotted properly for the permit set, but we have bid sets coming up soon, and we'll need these dimensions fixed. If it's user error, fine. If it's an ArchiCAD foible, dandy. Just what's the best way to go about fixing this?

Thanks!

Keith

overallbefore_tn.jpg
23 REPLIES 23
Anonymous
Not applicable
And here's the current state of affarirs:
Link
Graphisoft Partner
Graphisoft Partner
Zolli wrote:
In our post-submittal bliss between Friday and Wednesday, no one on the team (it is a teamworked project) made any kind of global changes, and I'm sure nobody even opened up a dimension plan view. What's going on?
Well, there's one way to make sure, check the text file in the Teamwork Project's folder. You'll see who signed in and when changes were sent. Looks like sabotage to me!

Cheers,
Link.
Anonymous
Not applicable
Thanks, Link, I'm glad I attracted a 5-houser! I did check the Teamwork Notes file, and nobody signed in over the weekend, and no new user names. Crummy gremlins. Thanks for the quick response, though!

Any other thoughts?
Djordje
Moderator Emeritus
It's the black background 😉

Are your dims aligned, or horizontal/vertical?

You can rotate them back in place ...

Think: did ANYTHING happen to the file in the meantime?
Djordje



ArchiCAD since 4.55 ... 1995
HP Omen
Anonymous
Not applicable
I appreciate all your thoughts so far. Yeah, the black background is a company thing to "ease the transition" to AC10. (shrug)

The aligned/horizontal/vertical dims thought is a good one - is there a way to tell what a dimension is (i.e. vertical, horizontal, or aligned) after it's been placed on the drawing? Obviously, the diagonal ones are aligned, but I know what you mean-that maybe the visually "horizontal-" or "vertical-" looking dimensions are actually aligned and a tweak to the model element that they're referenced to might make them go awry. I don't know how to quickly check which type they are. My tracker says the dimension strings are 0, 90, and 45 degrees.

But even then, it's not necessarily rotating the dimensions that is the issue, because they are all at the proper angle. It's the new points on the drawing (doors on the other side of the drawing, for instance) that the dimension string extends to that's the problem. The weekend went by and suddenly there were new, very odd references on, and added to, the existing dimension strings!

I'm sure SOMETHING happened to the file, but I can't figure out what, or how it happened. Has anybody ever seen anything like this?
Greg Kmethy
Graphisoft Alumni
Graphisoft Alumni
Zolli,

Have you sent this to Tech Support yet? If not, please do so. It's a Tech Supporter's candy... Us support is http://tr.graphisoftus.com/
Gergely Kmethy
VP, Customer Success, Graphisoft
Anonymous
Not applicable
Well, I called US tech support and had to leave a message, no calls today (phooey). Is this something that you, Gergely Kmethy would like to look at? And what kind of information will tech support want from me for this problem?

My brother is in tech support, and I hear all the time about candy (the sweet AND the sour), so I'm glad to see that somebody's interested!

Zolli
Anonymous
Not applicable
I have some additional thoughts that may prove helpful. It appears that some of the dimensions that were associated to the center hotspot of doors and windows are the ones that have been moved or deleted by AC10. I do recall that a number of the doors' IDs had been changed recently. Our door and window markers, as well as our door and window schedules, read from the door / window's ID, so the door IDs were changed to update our schedules. Our window IDs were not changed because they were OK. So now it looks as though the dimensions have been re-associated to different doors (mostly) or windows all over the project.

For instance, a dimension that used to associate to a grid line and a door centerline now associates to the same grid line and now a different door somewhere else in the project (though sometimes it's to the center of the different door or sometimes to the edge of the door opening).

However, this is not always the case. Sometimes, and less often, a dimension will associate to one correct, original point and then bypass any window or door opening entirely and associate to a wall edge or to the corner of a fill. Those walls and fills did not change. Of course, this sort of thing also happened to some windows whose IDs were not changed. And, it happens to one window in a string, but not the one next to it.

Even more exciting, the problem seems to be getting worse. I'm attaching two more images from two different dates, after the dimension fun, that show the dimensions de-associating from some windows in a wall.

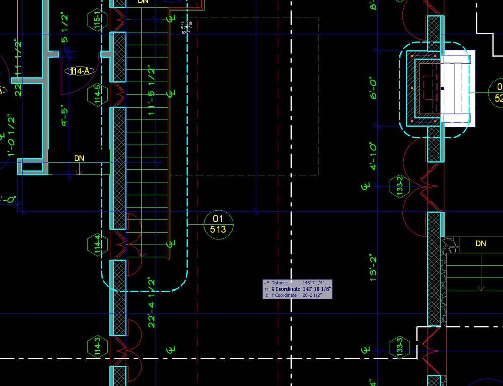
In the first image, the dimension string that runs from top to bottom over the top of the stairs first reads properly, dimensioning the centers of the windows 114-3, 114-4, 114-5, and 115-1. The dimensions have already been weirdified (a technical term), as can be seen from the dimension line than cuts over the top of the 01/513 detail tag.

In the second image, the dimension string has de-associated itself from all the windows except 115-1. None of the window IDs had been changed.

I can see that over 500 people have viewed this thread, and only 3 comments. PLEASE share your ideas or say if this has happened to you! Is it a setting or an option? An improper technique for placing the dimensions (i.e., different than how the manual says to place them)? A known bug? A haywire parameter? A plug-in? CadImage has been removed recently.

Please help!

Zolli
1.jpg
Anonymous
Not applicable
the second image
2.jpg