cancel
Showing results for 
Search instead for 
Did you mean: 
EN
cancel
Showing results for 
Search instead for 
Did you mean: 
Anonymous
Not applicable

Detailing Help!

Hi everyone

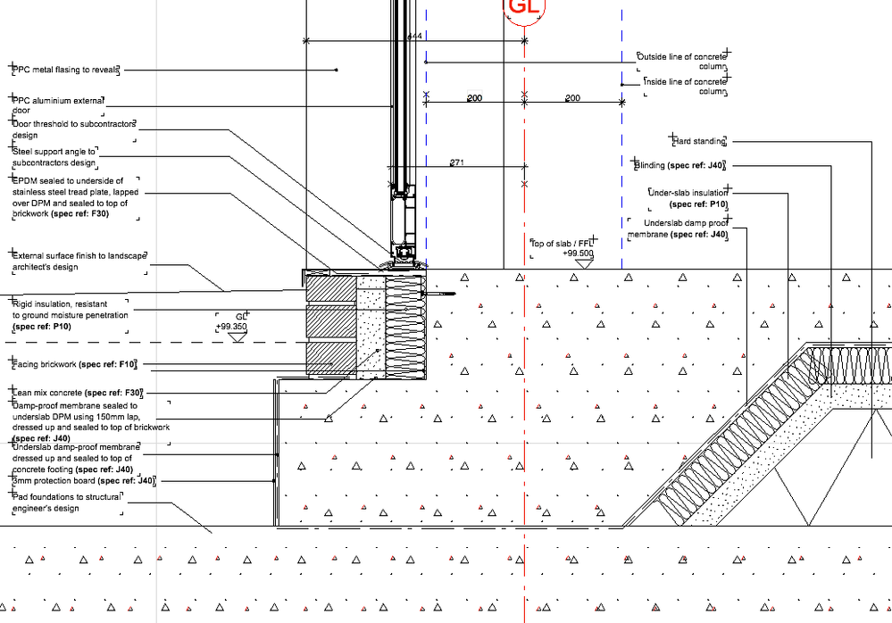
I have attached two images: one is a detail produced in vectorworks 2010 and other is the section I have produced in Archicad 15 so far. I'm tasked with making these two details look the same and am struggling to get the same level of detail in Archicad with no plugins that I can in Vectorworks.

Any help in how to approach this would be appreciated but my main questions are:

- Is there anyway to get more detail in the wall profile? The walls in archicad are not very detailed and I would like to see individual bricks and mortar in a 1:20 section. Is that possible without manually drawing it in?

- Can I scale the hatching and choose the direction? I want to get the insulation pointing in the right direction and scaled to fit properly.

- How to I make the background of the section white instead of grey in the walls?

Thanks very much.
Richard

Screen shot 2012-01-25 at 17.40.17.png
6 Replies 6
Anonymous
Not applicable
And here is the drawing produced in Vectorworks 2010...
Screen shot 2012-01-25 at 17.40.09.png
Karl Ottenstein
Moderator Emeritus
Richard wrote:
- How to I make the background of the section white instead of grey in the walls?
This is controlled by the Section tool settings. You have the option for each section to specify how the cut elements are displayed. If there is no check in the box for 'uniform pen for cut elements', the each cut element uses its own pens and fills - including whatever color you specified as the fill background color. If you check the box for uniform pen - then you can specify the pen (color and width) for the cut contours - and the pen (color and width) for both the fill and the fill background.

The choice of which to use depends on if you want some sections / plan view to show something different.

Karl
Vote for Wish: Copy/Paste in 3D

AC 29 USA and earlier   •   hardware key   •   macOS Tahoe 26.5 MacBook Pro M2 Max 12CPU/30GPU cores, 32GB
Karl Ottenstein
Moderator Emeritus
Richard wrote:
- Can I scale the hatching and choose the direction? I want to get the insulation pointing in the right direction and scaled to fit properly.
To have the insulation fill follow the direction of the skin that it is in, you must use a 'symbolic' type fill and choose 'fit to skin' as the skin fill orientation as shown in the attached screenshot. It is a shame that this feature does not work with vectorial fills, so you may have to construct your own symbolic fill.

Karl
Screen Shot 2012-01-25 at 12.26.59 PM.png
Vote for Wish: Copy/Paste in 3D

AC 29 USA and earlier   •   hardware key   •   macOS Tahoe 26.5 MacBook Pro M2 Max 12CPU/30GPU cores, 32GB
Karl Ottenstein
Moderator Emeritus
For more detail, such as bricks and mortar, there isn't any great way of modeling that in ArchiCAD. A profiled wall can extrude horizontally, showing a section cut such as your Vectorworks detail - but the elevation appearance would be terrible, as it would just be three very long bricks stacked on top of one another.

Because you said you did not want to use 3rd party plug-ins, the only options are to either do the profiled wall on a separate layer that only shows up on sections. A little weird - and coordination errors if the wall changes.

...or, to do it in 2D overlays - many people use 2D objects for this. The US library contains lots of 2D detail 'stamps'. The brick course 2D object in the US library is stretchy, replicating bricks/mortar to fit, so it quickly inserted. But, this type of 2D work also breaks the modeling process and leads to coordination errors (between sections and model).

The extreme detail shown for the door in your VW drawing is not available in any standard AC doors. If you have a manufacturer's DWG file for the door section, you can place that file with the Drawing Tool and snap it into your section - although other methods might be required if it needed editing, line weight changes/etc.

Out of curiosity: in VW, is that brick stack actually modeled brick that looks correct in all views? And is the door section detail from a standard VW door? Both seem pretty impressive from this side of the fence if so...

Cheers,
Karl
Vote for Wish: Copy/Paste in 3D

AC 29 USA and earlier   •   hardware key   •   macOS Tahoe 26.5 MacBook Pro M2 Max 12CPU/30GPU cores, 32GB
Anonymous
Not applicable
Thanks for all the help karl - much appreciated!

No all of the VW drawings arnt taken from models but drawn in 2d. Drawn in the same way that you suggested I draw it. I'll just copy/paste the DWG accross into the section and overlay it.

Would you happen to know of any good plugins which would allow me to produce a good detail without all the 2d drawing?

Thanks,
Richard
Karl Ottenstein
Moderator Emeritus
Richard wrote:
Would you happen to know of any good plugins which would allow me to produce a good detail without all the 2d drawing?
Still 2D, but there are several libraries of 2D parts to speed up detailing - basically stamping parts onto the view, with some parts being parametric.

The US Library has a larger library of detailing parts in it, but they are almost all "snapshots" of 2D drawings for Imperial-sized elements, and so are of limited use to metric users (unless the bits and pieces won't be dimensioned). This portion of the US library hasn't changed since AC 9 or AC 10, so downloading any US version since then and pulling the Detailer folder out of the library would work.

CADImage advertises a Detail Elements library. Not sure what's in it - I don't see a comprehensive visual list on their site:
http://www.cadimageworld.com/tools/documentation/detailel-ements
but they show a free trial link there.

ObjectsOnline advertises a few detail bits and pieces, but the prices for individual objects seems absurdly high IMHO.

There are a several useful objects for free right here in the Object Depository, under 01 General > Graphic Symbols and elsewhere.

Cheers,
Karl
Vote for Wish: Copy/Paste in 3D

AC 29 USA and earlier   •   hardware key   •   macOS Tahoe 26.5 MacBook Pro M2 Max 12CPU/30GPU cores, 32GB

Still looking?

Browse more topics

Back to forum

See latest solutions

Accepted solutions

Start a new discussion!