cancel
Showing results for 
Search instead for 
Did you mean: 
cancel
Showing results for 
Search instead for 
Did you mean: 
Documentation
About Archicad's documenting tools, views, model filtering, layouts, publishing, etc.
SOLVED!

Door object not displaying correct across existing&new wall

In_Space
Contributor

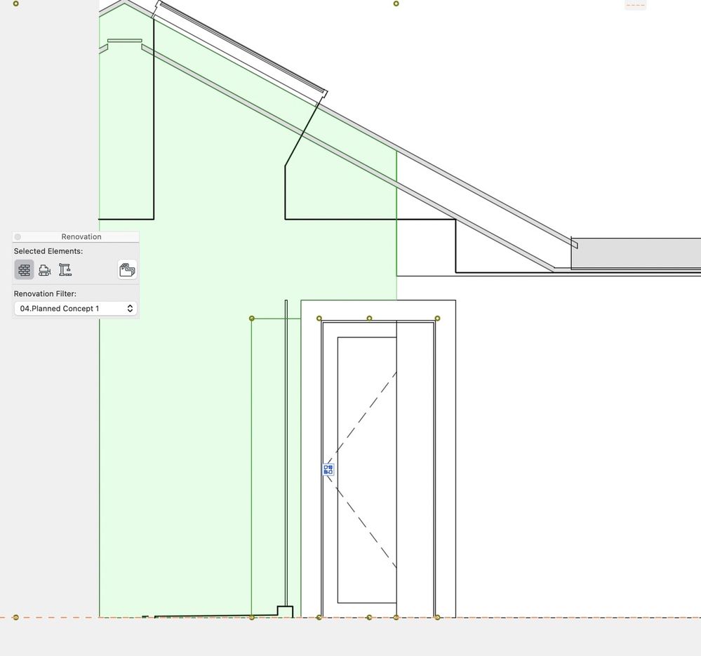
I'm working on a remodel project and hoping to retain, at least in plan view—existing, new and demo'd walls, doors and windows. However, in my interior elevations (and sections) things aren't displaying as hoped. You can see in my attached images, the new door is not displaying correct across the butted new and existing wall & the demo'd door outline is also showing. How do I correct this and just display my new proposed elements & exclude demo'd objects? Thx.


Existing wallw:demodoor Large.jpgNewWall Large.jpg
Dan
Senior Associate
iMac 3.6 GHz 8-Core Intel Core i9/Macbook Pro Silicon
OSX 13.4.1
AC27
1 ACCEPTED SOLUTION

Accepted Solutions
Solution
Lee Hankins
Virtuoso

Unfortunately this is a limitation of Renovation Filters and how the door and window tools work. A door or window cannot exist in two separate walls. The only way to make it work is to create an empty opening in the existing wall or new wall, (depending which wall hosts the door), to the same width as the section of door that passes in to that wall as mentioned previously. You could achieve it by locking certain walls to the existing and proposed filters and changing their dimensions but this gets quite complicated. 

if you want to hide the demolished elements in your proposed filters you just need to edit the filter settings to ‘hide’ demolished elements rather than override them. It looks like what is showing is actually the ‘new’ infill in to the existing opening rather than the demolished item being overridden. 

Lee Hankins
ArchiCAD 4.5 - Archicad 29
macOS Tahoe (26.0)

View solution in original post

3 REPLIES 3
Lingwisyer
Guru

If you have a door / window crossing between two walls, you will need to add a seperate opening into the second wall.

AC22-28 AUS 3110Help Those Help You - Add a Signature
Self-taught, bend it till it breaksCreating a Thread
Win11 | i9 10850K | 64GB | RX6600 Win11 | R5 2600 | 16GB | GTX1660
Solution
Lee Hankins
Virtuoso

Unfortunately this is a limitation of Renovation Filters and how the door and window tools work. A door or window cannot exist in two separate walls. The only way to make it work is to create an empty opening in the existing wall or new wall, (depending which wall hosts the door), to the same width as the section of door that passes in to that wall as mentioned previously. You could achieve it by locking certain walls to the existing and proposed filters and changing their dimensions but this gets quite complicated. 

if you want to hide the demolished elements in your proposed filters you just need to edit the filter settings to ‘hide’ demolished elements rather than override them. It looks like what is showing is actually the ‘new’ infill in to the existing opening rather than the demolished item being overridden. 

Lee Hankins
ArchiCAD 4.5 - Archicad 29
macOS Tahoe (26.0)
In_Space
Contributor

Thanks for the replies, this helps.

Dan
Senior Associate
iMac 3.6 GHz 8-Core Intel Core i9/Macbook Pro Silicon
OSX 13.4.1
AC27