cancel
Showing results for 
Search instead for 
Did you mean: 
cancel
Showing results for 
Search instead for 
Did you mean: 
Documentation
About Archicad's documenting tools, views, model filtering, layouts, publishing, etc.
SOLVED!

I want you to tell me how to draw a partial plan with interlocking dimensions.

LeeJaeYoung
Virtuoso

I'm startled right now
I'm hoping you'll tell me I'm wrong.
I am preparing a partial drawing, but the lines and dimensions are not linked.
1. In the detail drawing, if the drawing is modified and then rebuilt, it is changed to a non-interlocking stupid dimension or deleted.
I'm hoping you'll tell me you're wrong.

This function is also available for partial drawings created by AutoCAD importing xref files.

 

2. In order to interlock, you should not put a dimension line in the center line by covering it with a fill in the plan view and making a hole. Talk about finding the end line.
All drawings are 1/500 scale. The partial floor plan is 1/100.
I have to go to the dimension at the end to put in the dimension.
And this method should not be used.

I want you to tell me how to draw a partial plan with interlocking dimensions.

 

LeeJaeYoung_0-1685948733407.png

The floor plan is only in the inner rectangle and has dimensions in the rest.

 

LeeJaeYoung_1-1685948992030.png

 

 

AC27 on window 11
1 ACCEPTED SOLUTION

Accepted Solutions
Solution

For partial plans at the same or different scales, I do not use worksheets, simply because they are not 'live' views.

I use extra layers for the annotation and layer combinations that can isolate a plan view without annotation and one that shows just the annotation.

You can then place these views on a layout, overlaying them on top of each other.

Crop the plane (walls) view to just the area you need and extend the annotation only view to show the annotation you need.

 

Here is an old post explaining in more detail ...

 

https://community.graphisoft.com/t5/Documentation/How-to-create-LIVE-Detail-Floor-Plans/td-p/156956?...

 

Barry.

One of the forum moderators.
Versions 6.5 to 27
i7-10700 @ 2.9Ghz, 32GB ram, GeForce RTX 2060 (6GB), Windows 10
Lenovo Thinkpad - i7-1270P 2.20 GHz, 32GB RAM, Nvidia T550, Windows 11

View solution in original post

10 REPLIES 10
LeeJaeYoung
Virtuoso

LeeJaeYoung_0-1685959631005.png

LeeJaeYoung_1-1685959641807.png

LeeJaeYoung_2-1685959669498.png

associative elements (dimension or label) created in this viewpoint cannot remain associative upon rebuild,

if they are associative to elements generated from source view elements.

 

I didn't look closely at this phrase.
I thought that non-interlocking dimension lines would disappear or become stupid dimensions.

Isn't it possible to use the word interlocking here?
I thought it was a warning message about creating or deleting fixed dimensions if the interlocking image was shown when creating dimensions, and of course interlocked and disappeared.
I knew that the sky was falling when I found out that the interlocking with autocad was not so futile.
omg....

Of course, most of the drawings with a floor plan of 1/500 or more are partial floor plans.
It's something I couldn't have imagined.

I wish you a glimmer of hope.
Surely there must be another way?
I want to believe

 

AC27 on window 11
Solution

For partial plans at the same or different scales, I do not use worksheets, simply because they are not 'live' views.

I use extra layers for the annotation and layer combinations that can isolate a plan view without annotation and one that shows just the annotation.

You can then place these views on a layout, overlaying them on top of each other.

Crop the plane (walls) view to just the area you need and extend the annotation only view to show the annotation you need.

 

Here is an old post explaining in more detail ...

 

https://community.graphisoft.com/t5/Documentation/How-to-create-LIVE-Detail-Floor-Plans/td-p/156956?...

 

Barry.

One of the forum moderators.
Versions 6.5 to 27
i7-10700 @ 2.9Ghz, 32GB ram, GeForce RTX 2060 (6GB), Windows 10
Lenovo Thinkpad - i7-1270P 2.20 GHz, 32GB RAM, Nvidia T550, Windows 11

Would it be rude if I asked for some images?
It seems difficult for me to understand correctly.

 

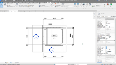
LeeJaeYoung_0-1686025847641.png

This is a partial floor plan that I am trying to create.

AC27 on window 11

@LeeJaeYoung wrote:

Would it be rude if I asked for some images?
It seems difficult for me to understand correctly.


Go to the link in my post.

It is simply just view over-laid in the layout and crop the frames to show the area you want.

 

Barry.

One of the forum moderators.
Versions 6.5 to 27
i7-10700 @ 2.9Ghz, 32GB ram, GeForce RTX 2060 (6GB), Windows 10
Lenovo Thinkpad - i7-1270P 2.20 GHz, 32GB RAM, Nvidia T550, Windows 11

I've read
Yes, I will study more.
I understand the overlapping in the layout by doing it myself.
The problem is how to do the dimensions and centerline...
You didn't understand that part.

thank you ^^
It would be really helpful for me if this problem is solved.
Thank you for always solving my questions.

AC27 on window 11

LeeJaeYoung_0-1686030390738.png

I'm surprised that something that is really easy in REVIT or AutoCAD doesn't work in ArchiCAD.

AC27 on window 11

Oh!
If you add one, it's a Grid bubble.
You can specify the position of the callout and each floor plan.
It seems that this is what I am uncomfortable with from using it in REVIT.
The various advantages of ArchiCAD have been learned a lot by you.

AC27 on window 11

@LeeJaeYoung wrote:

The problem is how to do the dimensions and centerline...
You didn't understand that part.


No I don't understand.

If you want to draw centre lines you can and you can dimension those lines if you want.

If you are talking about grid lines - I never use them.

 

Barry.

 

One of the forum moderators.
Versions 6.5 to 27
i7-10700 @ 2.9Ghz, 32GB ram, GeForce RTX 2060 (6GB), Windows 10
Lenovo Thinkpad - i7-1270P 2.20 GHz, 32GB RAM, Nvidia T550, Windows 11

I was just telling you a story.
The grid is also something I need to solve (I'll ask later ^^)
I have to study to see if I can get what I want with the method you told me, but I just told you this. ^^

AC27 on window 11