cancel
Showing results for 
Search instead for 
Did you mean: 
cancel
Showing results for 
Search instead for 
Did you mean: 
Documentation
About Archicad's documenting tools, views, model filtering, layouts, publishing, etc.
SOLVED!

Multi Dwelling Hotlinking Construction Drawings

AM2
Contributor

Hi, 

 

I'm currently working on a multi-dwelling/building project where all buildings are touching each other. I've hotlinked each file into a master file to develop a site plan. 

 

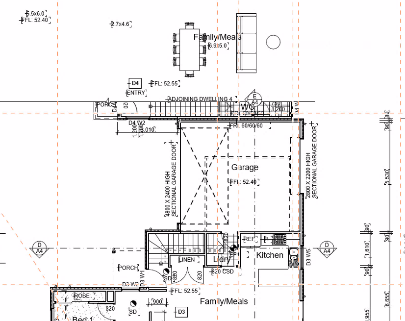
I am now completing the working drawings in each individual mod file, however, as each building are touching each other, i need to show a small portion of each neighbouring building. For example. I'm currently working on dwelling 3 but i need to show a small portion of dwelling 2 and dwelling 4 next to dwelling 3 floor plans  and in section. 

 

I've imported a hotlink of dwelling 1 and 4 into dwelling 3 file  to display the sections accurately, however,  i need to mask a majority of the floor plan to hide the irrelevant portion of those floor plans. The problem i'm facing is a simple fill isnt covering the entire adjoining floor plan as shown below. What is everyone doing in this scenario? is there a better way reduce the viewable area of an imported hotlink? 

 

As shown below, i've placed a white fill of dwelling 4 hotlinked file and pushed it to back and placed a white fill over the top but the couch table and some text is still visible and wont push back. 

 

AM2_0-1720488009222.png

 

What is everyone doing in this scenario? 

 

V27, PC: i7 8700, 32g RAM, RTX3060, Win 11

 

Operating system used: Windows 11

V27, PC: i7 8700, 32g RAM, RTX3060, Win 11
1 ACCEPTED SOLUTION

Accepted Solutions
Solution
Kristian Goodsell
Contributor

You could handle that pretty smoothly in the layouts.

 

Open both dwellings. Then in dwelling 1 at the top right of your navigator, you can switch the view to dwelling 2.

Then you can drag and drop the dwelling 2 view into the dwelling 1 layout.

Simply crop the dwelling 2 view to suite.

 

In this example BENNINGTON is the active Archicad so Dwelling 1,

HETFIELD is the dwelling 2 and the background Archicad.

 

 

example.jpg

Version 6 - 27

View solution in original post

3 REPLIES 3
scottjm
Mentor

Masking is probably your best bet. Frustratingly Archicad has no way to ‘crop’ a floodplan view. 

You may have to ‘Reset Display Order’ on some items if they are not being covered by the masking fill.  And then send to back. Sometimes I’ve found the display order goes weird and elements get stuck at the top of the display order. 

Scott J. Moore | Fulton Trotter Architects | BIM Manager, Associate, Architect
Since AC13 | Current versions AC23.7000 & AC26.5002 | BIMCloud Basic | Python, GDL, VBA, PHP, SQL, CSS
Certified Graphisoft BIM Manger (2022)
Win 10, i9-9900K, 32GB, Quadro P2200, 500GB NVMe
Solution
Kristian Goodsell
Contributor

You could handle that pretty smoothly in the layouts.

 

Open both dwellings. Then in dwelling 1 at the top right of your navigator, you can switch the view to dwelling 2.

Then you can drag and drop the dwelling 2 view into the dwelling 1 layout.

Simply crop the dwelling 2 view to suite.

 

In this example BENNINGTON is the active Archicad so Dwelling 1,

HETFIELD is the dwelling 2 and the background Archicad.

 

 

example.jpg

Version 6 - 27
AM2
Contributor

amazing thank you

V27, PC: i7 8700, 32g RAM, RTX3060, Win 11

Setup info provided by author