cancel
Showing results for 
Search instead for 
Did you mean: 
cancel
Showing results for 
Search instead for 
Did you mean: 
Documentation
About Archicad's documenting tools, views, model filtering, layouts, publishing, etc.

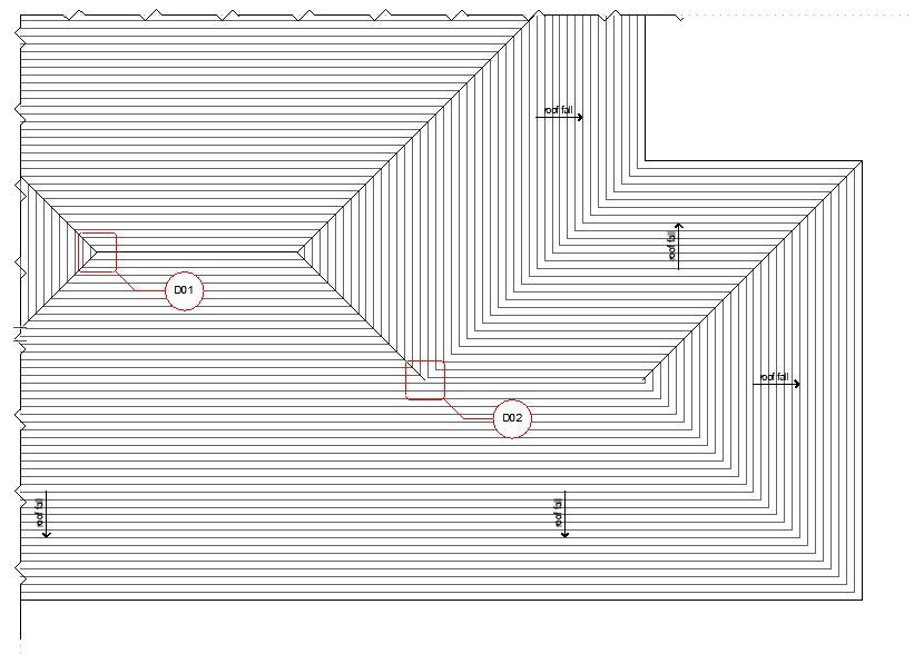
Split to single roof planes feature seems to create variation of dominant outlines

Samuel1997
Booster

Hi guys, back again with a query for the wise.

Having recently discovered the pleasures and pains of turning off legacy mode for single plane roofs, i have stumbled upon an issue in which after separating a multi plane roof into single planes, the edge lines of each roof plane seem to variate levels of dominance, resulting in the fills of each plane masking out edge lines of neighboring planes. The outcome being pen weights of the roof plan variate when printing along the ridges and valleys. Ive attached screenshots for reference. 

 

I gather that when splitting the roof, each edge gains properties with different priorities, as they are all on the same level. But i have found a soloution for changing the display of these edges. Any solutions for the issue listed above, aswell as information on the topic in general is greatly appreciated, Thankyou, 

 


ROOF PLAN DETAIL 1.JPGROOF PLAN DETAIL 2.JPGROOF PLAN OVERALL.JPG
AC19/24/26 | Win11 | 12th gen i-7 | 32GB | RTX 3070 Ti
5 REPLIES 5
Laszlo Nagy
Community Admin
Community Admin

When a Multi-Plane Roof is converted to Single Plane Roofs, their Display Order will be random.

You should try playing with the Display Order of those individual Roof Planes. 

In the worst case (not very BIM-like) you may want to draw those lines lines manually to achieve the exact 2D representation you need.

Loving Archicad since 1995 - Find Archicad Tips at x.com/laszlonagy
AMD Ryzen9 5900X CPU, 64 GB RAM 3600 MHz, Nvidia GTX 1060 6GB, 500 GB NVMe SSD
2x28" (2560x1440), Windows 10 PRO ENG, Ac20-Ac28
Samuel1997
Booster

Hi Laszlo, 

Using element info box to check the position of roof planes once split to single plane, the stack display order are all identical on the same position of Level 7. so no that isn't a solution as if one plane is brought forward manually, it then creates the same issue aforementioned. 

 

also no, 2D lines is not a solution at all, i mean seriously? 

AC19/24/26 | Win11 | 12th gen i-7 | 32GB | RTX 3070 Ti
Laszlo Nagy
Community Admin
Community Admin

I know none of these are good solutions.

But all we can do is deal with what we have, so I offered you some options.

Loving Archicad since 1995 - Find Archicad Tips at x.com/laszlonagy
AMD Ryzen9 5900X CPU, 64 GB RAM 3600 MHz, Nvidia GTX 1060 6GB, 500 GB NVMe SSD
2x28" (2560x1440), Windows 10 PRO ENG, Ac20-Ac28
Barry Kelly
Moderator

Hips, ridges and valleys of multi-plane roofs all share one common edge and the roof has one overall cover fill if you have that active.

As son as you split to single plane roofs, you now have two edges and cover fills that over lay each other.

The perimeter lines are all drawn in the same direction (I assume anti-clockwise), so each joining edge has 2 lines drawn in opposite directions - so dashed lines may now appear solid or almost solid.

And the cover fill from one will overlap half of the line thickness of the other roof plane.

 

There is nothing you can do about that except not use cover fills - still doesn't do anything for the overlapping lines.

 

There is also another issue in that if the roof edge is not vertical (it usually is when you convert to single planes), you will see a double line for the top and bottom surface of the roof.

This can be controlled in OPTIONS menu > Project Preferences > Legacy.

I always leave this turned on as I usually work with single plane roofs.

 

BarryKelly_0-1655082280183.png

 

Barry.

One of the forum moderators.
Versions 6.5 to 27
i7-10700 @ 2.9Ghz, 32GB ram, GeForce RTX 2060 (6GB), Windows 10
Lenovo Thinkpad - i7-1270P 2.20 GHz, 32GB RAM, Nvidia T550, Windows 11

Thankyou for the in-depth explanation of the roof behavior after separation, i did explore turning the cover fill to transparent, which would then stop the line weight variation, but the issue then, was that the existing roof planes below, which are being  built over with saddle trusses, are then no longer masked out. The reason we have changed from legacy mode was to utilize the merge feature of roof planes in renovations to tidy up the projected roof lines on the floor plan. Seems with every advancement there is a trade off that's of equal importance.

AC19/24/26 | Win11 | 12th gen i-7 | 32GB | RTX 3070 Ti

Still looking?

Browse more topics

Back to forum

See latest solutions

Accepted solutions

Start a new discussion!