cancel
Showing results for 
Search instead for 
Did you mean: 
cancel
Showing results for 
Search instead for 
Did you mean: 
Documentation
About Archicad's documenting tools, views, model filtering, layouts, publishing, etc.
SOLVED!

Unable to make 3D object translucent in 2D section (seen in elevation)

shg1993
Participant

Hi there,

 

This is possibly quite a basic question, but have been struggling quite a bit with it.

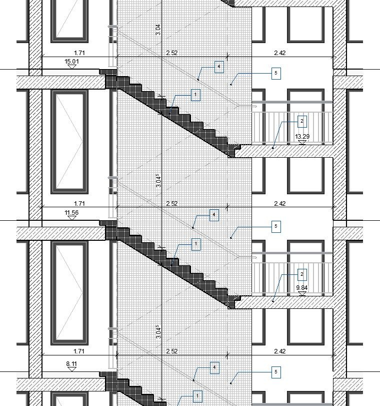
I have been working on a stair core and been trying to get this metal mesh wall that sits between two runs of stairs to show as transparent / translucent, with no luck. 

 

See my attached screenshots, which show the overwrite settings, the wall itself, the material settings etc. (Apologies but it is all in German, but hopefully it is clear enough to follow anyway)

 

Would really appreciate any feedback or suggestions.

 

Many thanks,

 


Gitterwand problem 02.jpgGitterwand problem 03.jpgGitterwand problem 04.jpgGitterwand problem 06.jpgGitterwand problem 05.jpgGitterwand problem 01.jpg
1 ACCEPTED SOLUTION

Accepted Solutions
Solution
runxel
Hero

Have a look at Heimo's video.

 

Lucas Becker | AC 29 on Mac (Sequoia) | Graphisoft Insider Panelist | Akroter.io – high-end GDL objects | Author of Runxel's Archicad Wiki | Editor at SelfGDL | Developer of the GDL plugin for Sublime Text

My List of AC shortcomings & bugs | I Will Piledrive You If You Mention AI Again |

POSIWID – The Purpose Of a System Is What It Does /// «Furthermore, I consider that Carth... yearly releases must be destroyed»

View solution in original post

3 REPLIES 3
Solution
runxel
Hero

Have a look at Heimo's video.

 

Lucas Becker | AC 29 on Mac (Sequoia) | Graphisoft Insider Panelist | Akroter.io – high-end GDL objects | Author of Runxel's Archicad Wiki | Editor at SelfGDL | Developer of the GDL plugin for Sublime Text

My List of AC shortcomings & bugs | I Will Piledrive You If You Mention AI Again |

POSIWID – The Purpose Of a System Is What It Does /// «Furthermore, I consider that Carth... yearly releases must be destroyed»

Thank you very much, that's really helpful! 🙂

Erwin Edel
Rockstar

If you want to use a vectorial pattern instead, make sure that:

  • you have your section set up to show transparancy in 'model display'
  • make sure that the surface has transmittance greater of 51 or higher

You may find that you do not want to look through all surfaces, so you might have to set some other transparant surfaces to 50 or lower for transmittance.

Erwin Edel, Project Lead, Leloup Architecten
www.leloup.nl

ArchiCAD 9-29NED FULL
Windows 11 Pro for Workstations
Adobe Design Premium CS5