cancel
Showing results for 
Search instead for 
Did you mean: 
EN
cancel
Showing results for 
Search instead for 
Did you mean: 
Dave Brach
Expert

floor plan shift when linked to another view

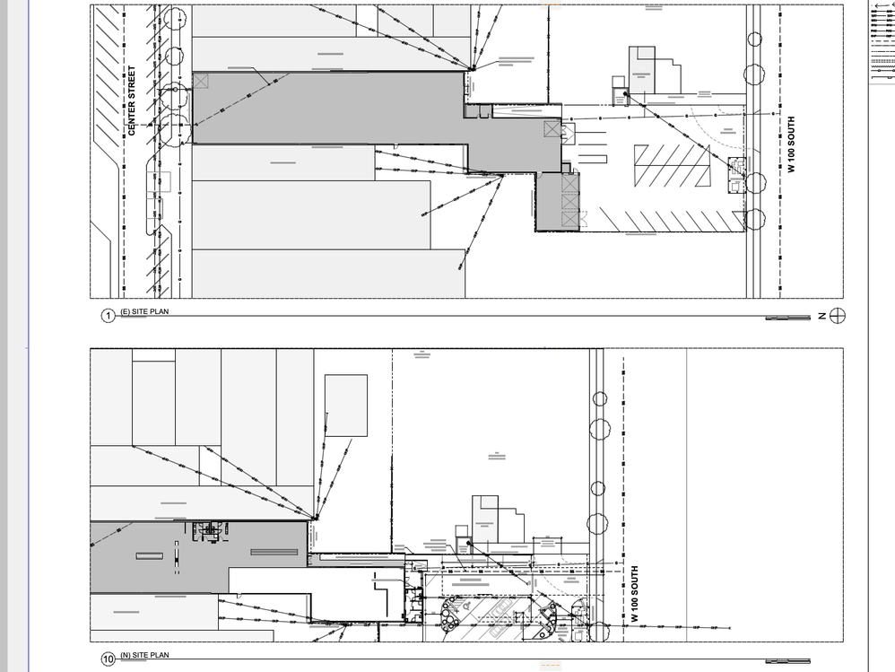
Normally when I make a copy of a drawing on a layout (say an existing site plan) and then link the drawing (using the "link to" command) to another view (say a new site plan) I expect the view to stay in the exact same place.  but I am working on a project now where the plan shifts when re-linked to another view.  Any ideas why?


Screenshot 2023-06-05 at 8.03.16 PM.png
Dave Brach/architect AC28 Macbook M4 Pro OS Sequoia
6 Replies 6
Barry Kelly
Moderator

Anything to do with the view settings being different for each view?

 

BarryKelly_0-1686018243438.png

 

 

Barry.

One of the forum moderators.
Versions 6.5 to 27
i7-10700 @ 2.9Ghz, 32GB ram, GeForce RTX 2060 (6GB), Windows 10
Lenovo Thinkpad - i7-1270P 2.20 GHz, 32GB RAM, Nvidia T550, Windows 11
Marc H
Advisor

Should be the same place if the second view is a direct copy from the first.  If not a copy from the first, there may be different sources (model vs worksheet), or settings (e.g., zoom, etc.)

“The best thing about the future is that it comes one day at a time.” - Abraham Lincoln

AC28 USA on 16” 2019 MBP (2.4GHz i9 8-Core, 32GB DDR4, AMD Radeon Pro 5500M 8G GDDR5, 500GB SSD, T3s, Trackpad use) running Tahoe OS + extended w/ (2) 32" ASUS ProArt PAU32C (4K) Monitors
Dave Brach
Expert

View settings are identical.  It happens when I drag a copy of the drawing, or copy/paste the drawing onto another layout.  It just shifts the plan, like 20 or 30'.  I've never had it happen on another project before.

Dave Brach/architect AC28 Macbook M4 Pro OS Sequoia
Marc H
Advisor

Hi Dave,

Maybe it’s something structural to the view. Could it be the ‘second’ view is from a different ‘story’?  For example, they took it from another topo or roof level that still looks graphically similar?

“The best thing about the future is that it comes one day at a time.” - Abraham Lincoln

AC28 USA on 16” 2019 MBP (2.4GHz i9 8-Core, 32GB DDR4, AMD Radeon Pro 5500M 8G GDDR5, 500GB SSD, T3s, Trackpad use) running Tahoe OS + extended w/ (2) 32" ASUS ProArt PAU32C (4K) Monitors
Dave Brach
Expert

still a mystery to me.  I first noticed it with 2 site plans--existing and new.  The only difference between the 2 views is he renovation status-one is "existing plan" and the other "planned status", but it also happens with floor plans from different levels.  I thought it might have something to do with project orientation since it is 90° and we usually work in 0°  but if I set it back to 0 it still does it. 

Dave Brach/architect AC28 Macbook M4 Pro OS Sequoia
DGSketcher
Legend

Have you set "Use Drawing's internal origin as anchor" in the Drawing Selection Settings? If not you will find linked views will potentially move to suit the cropped boundary. 

Apple iMac Intel i9 / macOS Sonoma / AC27UKI (most recent builds.. if they work)

Still looking?

Browse more topics

Back to forum

See latest solutions

Accepted solutions

Start a new discussion!