cancel
Showing results for 
Search instead for 
Did you mean: 
cancel
Showing results for 
Search instead for 
Did you mean: 
Documentation
About Archicad's documenting tools, views, model filtering, layouts, publishing, etc.
SOLVED!

incorrect section display

red2
Newcomer

Hello,
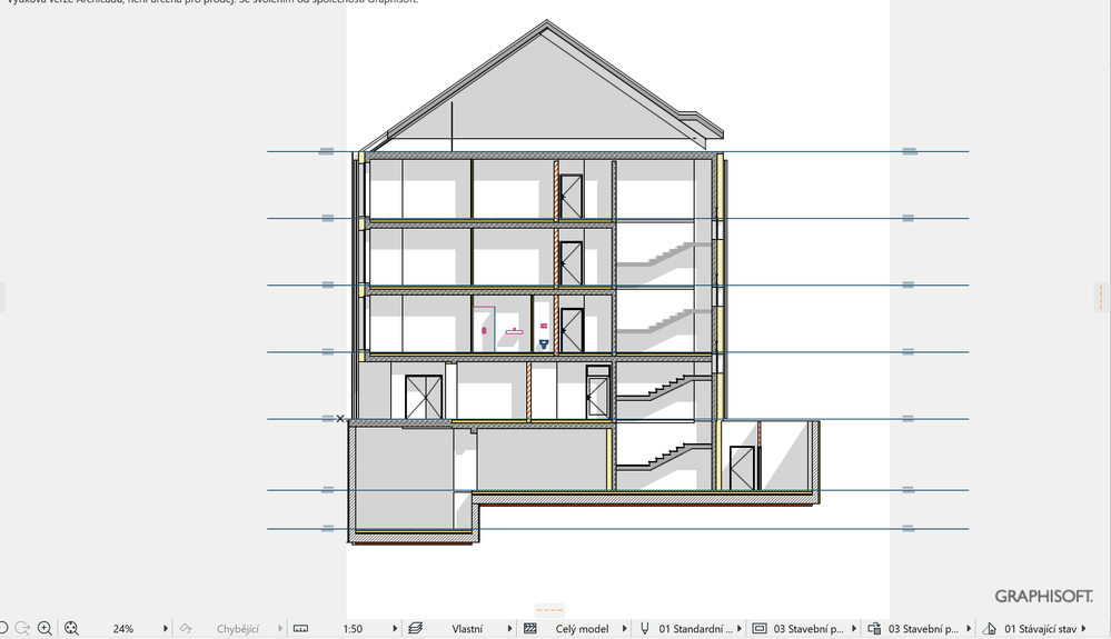
I don't know why the section drawing changed to only elements without fills, example in pic_1, but I need it to be drawn like in pic_2. After checking the settings, I didn't find any difference or error, moreover, the drawing in the floor plan works correctly, so I don't know where the error occurred.
How can I solve this problem?


Thank you

 

Operating system used: Windows


pic_1.pngpic_2.png
1 ACCEPTED SOLUTION

Accepted Solutions
Solution
runxel
Hero

Hi red2, welcome to the Forum.

 

If the settings are indeed the same for both sections then my best guess would be that you accidentally set the layers to wireframe in the first example.

There could also be some Graphic Overrides in play.

Lucas Becker | AC 29 on Mac (Sequoia) | Graphisoft Insider Panelist | Akroter.io – high-end GDL objects | Author of Runxel's Archicad Wiki | Editor at SelfGDL | Developer of the GDL plugin for Sublime Text

My List of AC shortcomings & bugs | I Will Piledrive You If You Mention AI Again |

POSIWID – The Purpose Of a System Is What It Does /// «Furthermore, I consider that Carth... yearly releases must be destroyed»

View solution in original post

2 REPLIES 2
CosminF
Advisor

Hi!

It seems like you have enabled different layers and graphic overrides (altough it seems you are having the same settings)  in the sections.

Firstly, I would open the 2nd section and then switch to the first one (in the Project map) - so you keep the same layer and graphic override. Does anything change?

Secondly, You can check that both sections have the same model appearance settings (right click on each, and go to section settings) : 
The parameters that interest you are Cut Fills, Uncut fills and eventual overrides.

CosminF_0-1736175318107.png

 

Cosmin Furdui - architect @ Wincon
AC 27, running on Windows 11 Intel(R) Core(TM) i7-14700K CPU64, 3.40GHz, 32GB RAM, Nvidia GeForce RTX5060 32GB
Solution
runxel
Hero

Hi red2, welcome to the Forum.

 

If the settings are indeed the same for both sections then my best guess would be that you accidentally set the layers to wireframe in the first example.

There could also be some Graphic Overrides in play.

Lucas Becker | AC 29 on Mac (Sequoia) | Graphisoft Insider Panelist | Akroter.io – high-end GDL objects | Author of Runxel's Archicad Wiki | Editor at SelfGDL | Developer of the GDL plugin for Sublime Text

My List of AC shortcomings & bugs | I Will Piledrive You If You Mention AI Again |

POSIWID – The Purpose Of a System Is What It Does /// «Furthermore, I consider that Carth... yearly releases must be destroyed»

Setup info provided by author