cancel
Showing results for 
Search instead for 
Did you mean: 
cancel
Showing results for 
Search instead for 
Did you mean: 
Modeling
About Archicad's design tools, element connections, modeling concepts, etc.

Texts turns in grey rectangles

mm_v
Participant

Hello!

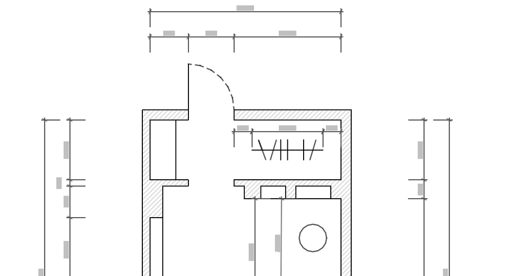
I have the latest Archicad 25 version, and I have a Macbook Pro 14'' laptop with the new M1 pro chip, and I have a problem with my Archicad projects. When I zoom out my 2D plans, the text turns into grey and unreadable rectangles, and I haven't found anything that could change that. It is really hard to work with this because I don't have the overall appearance of the project, only these grey rectangles.

Hope it is possible to fix this!


Screenshot 2021-12-11 at 15.06.01.png
2 REPLIES 2

Hello mm_v,

See below does this compare to your worries ?

ezgif.com-gif-maker.gif

The display of texts becomes simple gray bars when readability on the screen becomes impossible. I invite you to print this view at all printing scales, you will be able to see if your texts are printed correctly.

 


ezgif.com-gif-maker.gif
Christophe - FRANCE
Archicad Designer and Teacher
Archicad 15 to 28 FRA FULL

OS 13 Ventura - MacBook Pro M2 max- 32Go RAM
"Quality is never an accident ; it's always the result of an intelligent effort" John Ruskin
mm_v
Participant

Hi Christophe!
Thank you for your reply!
I was worried that only I see dimensions and texts that way, but now I understand that it is normal. It is just hard to get that overall image of my 2D plans, and that is why I wanted to know if there maybe be an option for how I can make these dimensions and texts not turn into these simple grey bars when I zoom out.
But when I save them as a pdf or print out, everything is good, no problems there. 🙂