cancel
Showing results for 
Search instead for 
Did you mean: 
cancel
Showing results for 
Search instead for 
Did you mean: 
Modeling
About Archicad's design tools, element connections, modeling concepts, etc.

Wall Heights error

Anonymous
Not applicable
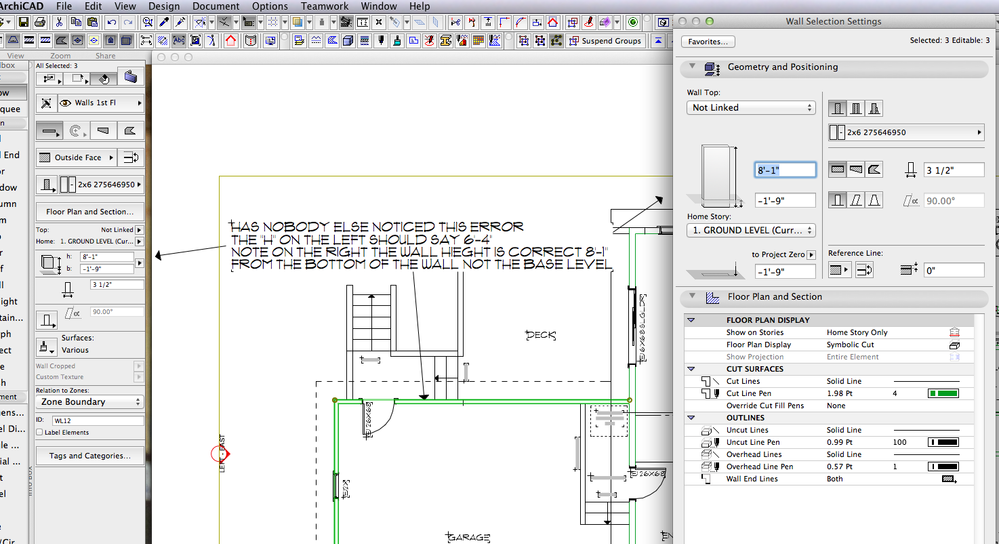
Is there an error in Archicad 17 or did they eliminate one of the methods of editing wall height without having to open the wall settings dialog. Note on my attachment how the two wall heights are not in agreement. If on the right I have an 8'-1" wall and set it 1'-9" below floor level then the dialog on the left should give the wall height relative to the base of 6'-4". The wall is not linked to the upper level but if it was then the left dialog box would no longer be changeable. I use that edit square all the time. so if any one has an answer.

Screen Shot 2013-09-19 at 4.06.57 PM.png
6 REPLIES 6
Anonymous
Not applicable
It appears it is not an error, but a change in the way the wall parameters are displayed. The "h" indicates Height of the wall (from its base), whereas the old method was to display the top level "t". The arrow to the right of your figures brings up options to display figures with "Top and Home Offset" or "Height and Home Offset". For me the "Top" option is greyed out and cannot be selected, and as I have not really taken on AC17 yet I don't know what triggers this to be available. Someone else may have the answer to that.
Anonymous
Not applicable
I'm providing a larger view since as I see it should still act the old way of H in relation to base plane not H in relation to wall itself. If this is the new way then I don't like it.
Screen Shot 2013-09-30 at 2.16.18 PM.png
Anonymous
Not applicable
Problem solved. I finally realized what s2art was trying to tell me. I clicked on the little arrow next to the H and that gives a selection of how you want to see the elevations. I'm always forgetting to try all the new arrows next to selections
Thanks for the help.
Anonymous
Not applicable
Ah, a larger image. That's like talking louder to someone because they don't speak English.

I know exactly what you mean, though. It was good to have the two alternative ways of determining the top of a wall - either by top level in the info box, or by height from base in the wall settings. If someone can explain how we get the "Top and Home Offset" option active in the side arrow sub menu (or whatever its technical name is) you should be able to have it the way you like it.

(Oops, too late, but glad you got there).
wall height.png
Laszlo Nagy
Community Admin
Community Admin
Stuart, that option becomes enabled only when the Top of the Wall is linked to a Story.
With the "Not linked" option for the Wall top it is not available.

And Ron, yes, that little arrow gives you access to the various options.
In your case I think the "Current Story" option will provide you with the way it worked in AC16.
(Actually, in that case the H: text - which is for Height - will turn back to T: - which is for Top)
Loving Archicad since 1995 - Find Archicad Tips at x.com/laszlonagy
AMD Ryzen9 5900X CPU, 64 GB RAM 3600 MHz, Nvidia GTX 1060 6GB, 500 GB NVMe SSD
2x28" (2560x1440), Windows 10 PRO ENG, Ac20-Ac29
Anonymous
Not applicable
laszlonagy wrote:
Stuart, that option becomes enabled only when the Top of the Wall is linked to a Story.
With the "Not linked" option for the Wall top it is not available.

And Ron, yes, that little arrow gives you access to the various options.
In your case I think the "Current Story" option will provide you with the way it worked in AC16.
(Actually, in that case the H: text - which is for Height - will turn back to T: - which is for Top)
Thanks for the clarification.