cancel
Showing results for 
Search instead for 
Did you mean: 
EN
cancel
Showing results for 
Search instead for 
Did you mean: 
Anonymous
Not applicable

Windows tool error when put on profiled wall

Hello everybody,

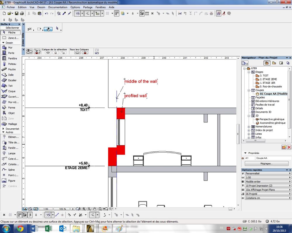
I experience a strange problem with the windows that i put on some profiled walls. I have attached 4 comparative images in oreder to be more explicit.

The problem is when i set the window in the cutplan it appears affsetted in section,the oposite happens if i set it correctly in the section. I found no middle variable, still I believe it is a BUG of Archicad. Can anyone give an opinion. Did somebody experienced something like this ? How did you solve this problem?

Any reply will be appreciated,

1a.jpg
15 Replies 15
Anonymous
Not applicable
YS1616 wrote:
YS1616 wrote:
YS1616 wrote:
For some reason i could attache only one image...I try to attache the other 3

2b.jpg
Anonymous
Not applicable
Hello Miki, hello Karl ,

Thank you for your reply.
The middle of the wall is in between the two walls. I modified the window parameters. I also modified the parameters of the window..I have got no solution for this error yet..

The strange thing is that, when it is correct in the Section, in the Cut-plan it appears offseted, and the opposite when i change the parameters..

I need this shape of the wall because i must not exceed the legal high in the facade.

Please, check my new images, that i made more clear to understand, i hope..

Have a nice day !
Laszlo Nagy
Community Admin
Community Admin
Maybe you should model it with 2 Walls instead of one.
The upper vertical part which includes the Window could be one Wall. The lower portion that would look like an L mirrored to a horizontal axis would be the other Wall.
Loving Archicad since 1995 - Find Archicad Tips at x.com/laszlonagy
AMD Ryzen9 5900X CPU, 64 GB RAM 3600 MHz, Nvidia GTX 1060 6GB, 500 GB NVMe SSD
2x28" (2560x1440), Windows 10 PRO ENG, Ac20-Ac29
Anonymous
Not applicable
Well, this is the only thing I can do..I was just wondering if there was some BUG in the program.

Thank you !

laszlonagy wrote:
Maybe you should model it with 2 Walls instead of one.
The upper vertical part which includes the Window could be one Wall. The lower portion that would look like an L mirrored to a horizontal axis would be the other Wall.
Laszlo Nagy
Community Admin
Community Admin
One last thing I am thinking about is where your Floor Plan Cut Plane is located.
You may try to raise it so it cuts the Wall and the Window across the upper vertical portion of the profiled Wall.
Then it may display the way you want it.
Loving Archicad since 1995 - Find Archicad Tips at x.com/laszlonagy
AMD Ryzen9 5900X CPU, 64 GB RAM 3600 MHz, Nvidia GTX 1060 6GB, 500 GB NVMe SSD
2x28" (2560x1440), Windows 10 PRO ENG, Ac20-Ac29
Anonymous
Not applicable
I tried to change the height of the Cut-plane, but nothing changes...

Still looking?

Browse more topics

Back to forum

See latest solutions

Accepted solutions

Start a new discussion!