cancel
Showing results for 
Search instead for 
Did you mean: 
EN
cancel
Showing results for 
Search instead for 
Did you mean: 
Zendrix
Expert

PDF EXPORT - very heavy files

Hi! 

I have a set of nearly 30 drawings, most of them have a normal/reasonable size. But 2 or 3 are way out of line in terms of what a normal size would be: i have 2 normal plans that when exported to PDF have 14MB!?! Can someone help me figuring out the reason for this? The PDF becomes unmanageable.

 

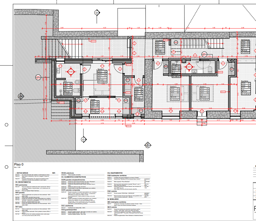
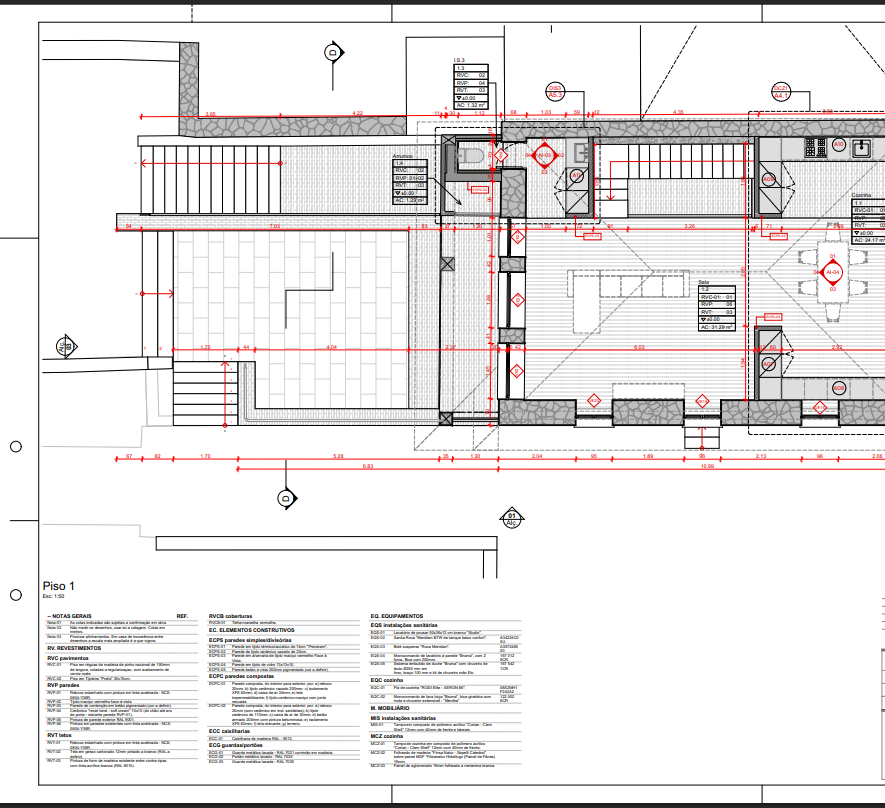
I attach some pics of the said plans.

 

Cheers,

Z


image.pngimage.pngimage.pngimage.png
AC28 . LeNovo Y520 Intel Core i7-7700HQ @ 2.80GHz 8GB RAM. Windows 10 Home
5 Replies 5
CosminF
Advisor

Hi,

Firstly, I would check if the file becomes lighter if you change the fills to simpler fills (maybe using a GO to redo concrete fill to 25% etc). Usually the more intricate the fill, the greater the PDF size.

Also if you have elements which were manually drawn in in 2D or imported from DWG, those tend to have tens of thousands of microscopic lines that clutter up the file.

Hope this helps.

Cosmin Furdui - architect @ Wincon
AC 27, running on Windows 11 Intel(R) Core(TM) i7-14700K CPU64, 3.40GHz, 32GB RAM, Nvidia GeForce RTX5060 32GB
Zendrix
Expert

Hi CosminF,

Thanks for the reply. I dont have any 2D or DWG imported items, apart from one big earth fill on the left of the lower plan drawing (but i dont think it comes from that fill cause the first floor plan does not have one and still is 13MB large!). Also if u notice, my section as almost the same amount of fills (minus the pavement fills) and is way smaller (3MB).

 

But i would be really disappointed if some simple wall fills (that took some time to arrange in order for the drawing to have expression) would in the end have to be redesigned cause it rendered a simple PDF plan unusable. That does not seem nearly sustainable in architecture practice!!

 

 

Cheers,

Z

AC28 . LeNovo Y520 Intel Core i7-7700HQ @ 2.80GHz 8GB RAM. Windows 10 Home
Zendrix
Expert

So i have an update:

 

I placed a GO over the "Cut Fills" and made all my wall's sections white: the file went from 14MB to 340KB!

But now here is the next mistery: My GO rule had "Element Type = All Types" when the above happened. But after that, in order to make a confirmation test, i tried "Element Type = Walls", all my walls became white again BUT... the file went back to 14MB... This means the problem is not in the wall section fills, am i right to assume that? In order to test this, i would have to go through all types of "element types" and see when something changes...

 

Z


image.png
AC28 . LeNovo Y520 Intel Core i7-7700HQ @ 2.80GHz 8GB RAM. Windows 10 Home
scottjm
Mentor

complex fill hatches are unfortunately a common cause for heavy files.

 

Please vote for this wish to provide an option to export PDFs as flattened images, this helps to reduce the size and loading complexity of export PDFs.

https://community.graphisoft.com/t5/Wishlist/Ability-to-Publish-PDF-with-quot-Print-as-Image-quot-Op...

Scott J. Moore | Fulton Trotter Architects | BIM Manager, Associate, Architect
Since AC13 | Current versions AC23.7000 & AC26.5002 | BIMCloud Basic | Python, GDL, VBA, PHP, SQL, CSS
Certified Graphisoft BIM Manger (2022)
Win 10, i9-9900K, 32GB, Quadro P2200, 500GB NVMe
Zendrix
Expert

I found the problem. I had 3 morphs (rectangular objects) to represent the surroundings, and they were the ones rendering the drawing impossible.

 

Hope it helps someone in the future.

Cheers,

Z

AC28 . LeNovo Y520 Intel Core i7-7700HQ @ 2.80GHz 8GB RAM. Windows 10 Home

Still looking?

Browse more topics

Back to forum

See latest solutions

Accepted solutions

Start a new discussion!