cancel
Showing results for 
Search instead for 
Did you mean: 
EN
cancel
Showing results for 
Search instead for 
Did you mean: 
owen
Newcomer

Wall Connections & Zone Boundaries

Can anyone suggest the best way to get two walls to join for the purposes of zone calculations when their reference lines do not actually intersect?

The attached image indicates a situation where the wall connection methods do not permit a proper zone boundary to be created. The area measurement requirements for this situation are:

1. Measure to the outside face of the glazed facade (i.e reference line).

2. Measure to the inside face of the shared concrete party wall on the boundary.

Now in order for the reference lines to sit in the correct alignment for measuring area, they just cannot connect. Due to this there is a small gap in the reference lines forming the zone boundary and the update fails. Little gaps like this occur all over the place for one or another perfectly legitimate reasons.

In the past I have just joined the gap with a simple line ('Zone Boundary' ticked) but im getting sick of all these 100mm bandaids everywhere - they are hard to maintain and they just don't feel right.

Zones should be a little more accomodating in their definition of a valid boundary IMO

Picture 1.png
cheers,

Owen Sharp

Design Technology Manager
fjmt | francis-jones morehen thorp

iMac 27" i7 2.93Ghz | 32GB RAM | OS 10.10 | Since AC5
14 Replies 14
Anonymous
Not applicable
It seems that you understand the issues quite well. The bandaid trick you describe is the only one I can think of short of making the walls intersect or adjusting the zones manually. Honestly, I don't follow why you can't connect the reference lines.
owen
Newcomer
Matthew wrote:
It seems that you understand the issues quite well. The bandaid trick you describe is the only one I can think of short of making the walls intersect or adjusting the zones manually. Honestly, I don't follow why you can't connect the reference lines.
Well its not that i can't connect them but there is no need to other than to form a closed reference line polygon for the zone boundary. In reality it will be built pretty much as it is drawn here - there is no need to 'build' something between the outside face of the glazed wall and the inner face of the concrete wall.

Perhaps the image i posted was not clear so i will try and explain it:

1. The glazed facade (thin wall) has its reference line along its outside face - along the red boundary line.

2. The concrete party wall has its reference line along the inside face - 125mm off the red boundary.

So there is a 125mm parallel offset between the two. Unless i draw another bit of wall (or a line as I have done) to bridge the gap there is a hole which breaks zone update. I prefer to have all my zones as auto-boundary rather than manual boundary - saves having to remember what's what.

Now I could simply change the concrete wall to a centerline reference line - then the two walls would both have their reference lines along the red boundary, would connect and the zone would be happy. But then the zone (measuring to the bounding reference lines) would incorrectly include half of that wall in its area calculation. The reference lines HAVE to be where they are for correct zone measurement - the issue is how to resolve that 125mm offset.

Anyway .. i think i realise there is no solution other than fudging it in 2D as we both describe. I was really just trying to make a point about the Zone tools boundary recognition methods.

I don't think there is any way this can be resolved by the zone tool though, such as closing open polygons via the shortest routes as fills sometimes manage to do. This would cause more problems than it would solve, such as when is a gap intentional.. What is a gap anyway.

I think wall intersections need to get a few tweaks so they can somehow connect without needing to intersect their reference lines.
cheers,

Owen Sharp

Design Technology Manager
fjmt | francis-jones morehen thorp

iMac 27" i7 2.93Ghz | 32GB RAM | OS 10.10 | Since AC5
TomWaltz
Participant
Option 3: Draw a line in a white-printing 0-weight pen that is has its "Zone Boundary" setting turned on
Tom Waltz
owen
Newcomer
I hadn't considered that option Tom but it's probably the best of a bunch of workarounds.

On to more Zone funny business, with reference to attached image:

I have a 5m x 5m room containing a 1m x 1m riser. All walls are 100mm thick and have Zone Boundary selected.

Using the Reference Line method the Gross area of the room comes out at 25m2

What about that 1m2 Zone Boundary sitting in the middle of it?

Net Area shows correctly at 22.04m2 - this measures to inner edge of all the walls. Why the hell does the Gross Area not recognize the riser walls? Does ArchiCAD think i didn't really mean it when i made them Zone Boundaries? Lets say this isn't a 5x5 room but a full floor apartment and that 1x1 riser is in fact a lift/stair core. Should it be included in the gross apartment area?

Is it meant to be this way or am i just doing something wrong?
cheers,

Owen Sharp

Design Technology Manager
fjmt | francis-jones morehen thorp

iMac 27" i7 2.93Ghz | 32GB RAM | OS 10.10 | Since AC5
owen
Newcomer
Does anyone know if this behaviour is intended or am I missing something somewhere?

I had previously been using manually drawn zones as I always found automatic zone boundaries had a hard time if a room had an unconventional shape. So I never really encountered this problem with Gross area before.

Does anyone think this is NOT a problem?
cheers,

Owen Sharp

Design Technology Manager
fjmt | francis-jones morehen thorp

iMac 27" i7 2.93Ghz | 32GB RAM | OS 10.10 | Since AC5
PatriciaLe_o
Participant
owen wrote:
In the past I have just joined the gap with a simple line ('Zone Boundary' ticked) but im getting sick of all these 100mm bandaids everywhere - they are hard to maintain and they just don't feel right.


Sorry about the ignorance... but I don't know this tip! Can you please explain me how you do this? Can you make a zone boundary with a line!? What I usually do is build a wall with thickness 0 and a empty opening. This way I have the zone separation but in plan and section it's like the wall is not there. It's also annoying because it's not as easily selectable when you change the rooms but it's easily forgettable...

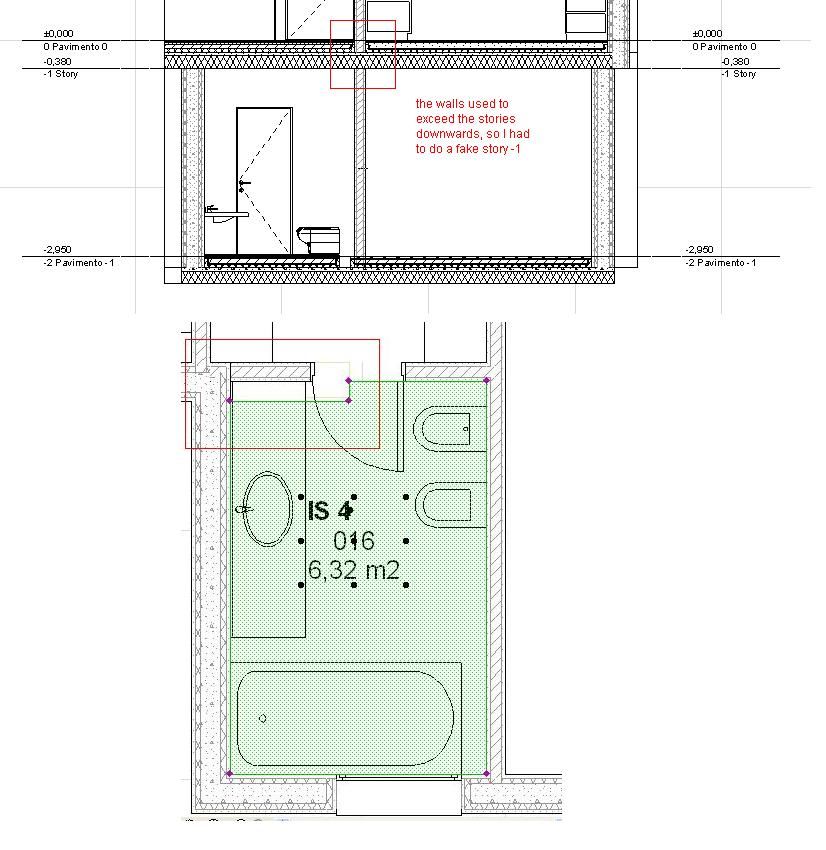
But I'm facing another zone issue... As the image shows, the zone from this downstairs wc is considering a upstairs wall (even if I change the zone height and level). I just found out that zones consider their boundaries between stories, when I tried to solve it making a fake story to the slabs (before that, the walls from the upstairs level were starting a little under the story because I thought the right thing to do was to set the story level to the finished floor level). Am I wrong doing this??? I suppose zones should have vertical boundaries too and "feel" slabs limits for instance...
zones.JPG
Patricia Leão

AC21 INT Full
MacOSHighSierra
Link
Graphisoft Partner
Graphisoft Partner
2D tools can be assigned a 'Zone Boundary', similar to the 3D tools' 'Relation to Zones'.

Cheers,
Link.
PatriciaLe_o
Participant
aaaahnn! Great! Thanks a lot Link!
Unfortunately I don't think this will help me this time, but for sure I'll use it.
Patricia Leão

AC21 INT Full
MacOSHighSierra
Anonymous
Not applicable
owen wrote:
Using the Reference Line method the Gross area of the room comes out at 25m2

What about that 1m2 Zone Boundary sitting in the middle of it?

Net Area shows correctly at 22.04m2 - this measures to inner edge of all the walls. Why the hell does the Gross Area not recognize the riser walls? Does ArchiCAD think i didn't really mean it when i made them Zone Boundaries? Lets say this isn't a 5x5 room but a full floor apartment and that 1x1 riser is in fact a lift/stair core. Should it be included in the gross apartment area?

Is it meant to be this way or am i just doing something wrong?
There are at least two (maybe more) area calculations built into the zone functions (within the GDL). The basic gross area calculation just shows the actual area bounded by the fill polygon with no deductions.

To get the riser out of the gross area you have to make an explicit hole in the zone. In this way it functions just like the fill tool with the area turned on.

The net area calculation will always deduct columns, walls, etc which reduce the usable space. It seems from your example that it is also smart enough to exclude the area within the riser (which I would not have assumed).

Still looking?

Browse more topics

Back to forum

See latest solutions

Accepted solutions

Start a new discussion!