2024-06-19 01:49 PM
I just find out there is an option in the settings of a zone stamp, to assign an "Apartment ID" to the zone. That´s great, but what consfuse me is that in order to type an ID, I have to click on the zone, go to the settings, scroll to down to stamp settings and find out Zone identification tab... which is a lot of clicking and time consuming. Is there a better way to do this? To know this would solve a lot of time for me because I have an add-on that sum every zone of an apartment and displayed on an Label, but the label is linked to the apartment ID of the zone, so I would have to select each zones of every apartment and assign their corresponding apartment ID as described before.
Operating system used: Windows
2024-06-20 01:58 PM
Use the Element ID Manager (under Document) to assign unique element IDs to multiple zones (with a counter)
 
					
				
		
2024-06-24 06:18 PM - edited 2024-06-24 06:21 PM
I would probably create a Property for this purpose, make it available for "Space" Classifications, and use that. You could even create Option Sets for the Property, so you could choose the Apartment ID from a list.
 
					
				
		
2024-06-24 09:22 PM
You might consider a dedicated zone layer for the units. I describe this approach in another post.
Basically, an under floor position of a flat zone on another layer can provide a lot of ease and flexibility once you set up your preferred views.
Hope this helps.
2024-06-25 11:53 AM
That´s the approach I have been using so far, but since I found a label that can sum all areas in an apartment base on the "Apartment ID" option available in the zone, then I though a better practice would be to set the Apartment ID of each zone. But doing it as you said, have been great because I just select all of the zones of 1 apartment unit and then control+T and there I have the option to assign an number or ID to the apartment at once. Then I can use the propertiy as a schedule criteria. But again, I can´t make a label that shows the entire area of each apartment unit.
 
					
				
		
2024-06-25 12:12 PM
Yes, unfortunately, Properties can only return data about individual elements, not data or a sum of values about a group of elements.
 
					
				
		
			
    
	
		
		
		2024-06-26
	
		
		03:29 AM
	
	
	
	
	
	
	
	
	
	
	
	
	
	
 - last edited on 
    
	
		
		
		2024-06-29
	
		
		09:20 PM
	
	
	
	
	
	
	
	
	
	
	
	
	
	
 by 
				
		
		
			Laszlo Nagy 
		
		
		
		
		
		
		
		
	
			
		
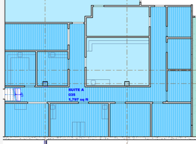
I've attached a sample of the approach I posted. The zones shown here are large zones that cover the entirety of the unit (here shown with suite numbers), thereby describing the gross square feet. These zones are positioned on their own layer and physically under the room zones (1" high and -1" under story), allowing for separate scheduling.
Depending on the need, they can be viewed in front or in back of the walls as shown in these two views.
2024-06-26 09:55 AM
The problem I have with this kind of approach is that the total area of the apartment is different that the sum area of each room area. Take for instance the suite A in your example, the total area include internal partitions and columns. The way I need to do it have to be excluding these elements.