cancel
Showing results for 
Search instead for 
Did you mean: 
cancel
Showing results for 
Search instead for 
Did you mean: 
Project data & BIM
About BIM-based management of attributes, schedules, templates, favorites, hotlinks, projects in general, quality assurance, etc.

Origin of cover fill of a component of composite structure?

Anonymous
Not applicable
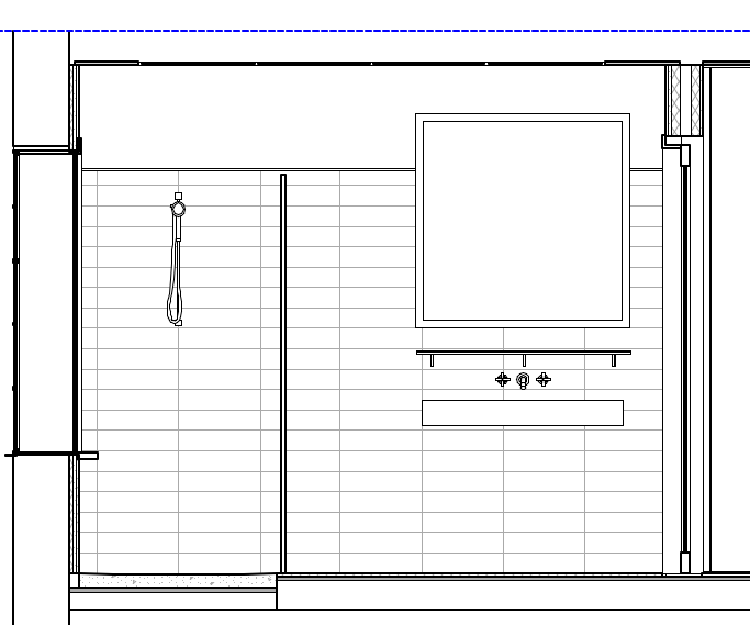
For a project we are working on, I have created a series of composite structures, all of which have the same finish, tile below and painted wallboard above - each has a different substrate/framing/insulation condition, but the finish layer is consistent amongst all composite structures.

We have created a material (vectorial hatch) for the "Side material" of the lower part of Finish Component of the structure: QUESTION: Is it possible to set or edit the origin of a Composite Structure compnent "Side Material", as you can with a cover fill - "Link to Origin"?

You can probably get a sense of the problem we need to solve from the screenshot.

Thanks for any help

fill_adjustment.png
2 REPLIES 2
Barry Kelly
Moderator
You can select the wall in 3D view and use the DESIGN > ALIGN 3D TEXTURE commands.
But this will move all of the fill patterns on the face of the wall.
In your case this should be fine as the tiles are a fill pattern but the painted wall above has no fill.

I don't know of a way to align the individual fills in a composite wall.

Barry.
One of the forum moderators.
Versions 6.5 to 27
i7-10700 @ 2.9Ghz, 32GB ram, GeForce RTX 2060 (6GB), Windows 10
Lenovo Thinkpad - i7-1270P 2.20 GHz, 32GB RAM, Nvidia T550, Windows 11
Anonymous
Not applicable
Thank you Barry, let's me do exactly what I hoped to do.

Paul