cancel
Showing results for 
Search instead for 
Did you mean: 
cancel
Showing results for 
Search instead for 
Did you mean: 
Collaboration with other software
About model and data exchange with 3rd party solutions: Revit, Solibri, dRofus, Bluebeam, structural analysis solutions, and IFC, BCF and DXF/DWG-based exchange, etc.

MEP Axo Views for Engineers

Alanerniquez
Participant
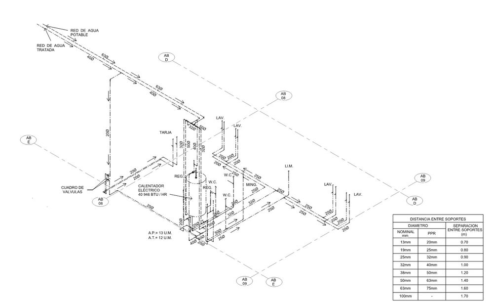
Does anyone knows how to create MEP axonometric views that are commonly used by engineers for Plumbing systems?
Showing only lines instead of the whole pipe with different line types for each system?

Sin título.jpg
Mexico
7 REPLIES 7
Anonymous
Not applicable
Why doesn't regular 3D Document created from axonometric point of view work for you?
Alanerniquez
Participant
The problem is that this is the standard for construction documents in Mexico and also because it is not used to plot color plans for construction due to most of the plans that are on site are common photocopies of the original. So basically the contractors are asking me to deliver the information like this.
Mexico
Eduardo Rolon
Moderator
2 possible options: Either draw it as is usually done by doing the lines in 2D at 45 degrees or Build the lines using the morph tool and capture a 3D Document at the correct axon angle.
Eduardo Rolón AIA NCARB
AC28 US/INT -> AC08

Mac Studio M4 Max 64GB ram, OS X 10.XX latest
another Moderator

Laszlo Nagy
Community Admin
Community Admin
I am wondering if MEP Modeler is capable of doing this.
Unfortunately I am not familiar enough with it to be able to answer this question myself.
Loving Archicad since 1995 - Find Archicad Tips at x.com/laszlonagy
AMD Ryzen9 5900X CPU, 64 GB RAM 3600 MHz, Nvidia GTX 1060 6GB, 500 GB NVMe SSD
2x28" (2560x1440), Windows 10 PRO ENG, Ac20-Ac28
Anonymous
Not applicable
laszlonagy wrote:
I am wondering if MEP Modeler is capable of doing this.
I don't think it would. This is schematic axonometric drawing we are talking about and MEP Modeler does not have a function to show any objects as schematics.

Eduardo's solution, mentioned above, using morphs consisting of a single edge is the best in my opinion.

p.s. It would be a really nice feature for MEP Modeler to include schematic plumbing/heating view, but it is not there.
Alanerniquez
Participant
Also it would be nice to have the MEP elements with schematic representation in 2D such as the Lamps objects have it on the (Model View Options). And for the 3D document view as well. Is one of my wishes for the MEP addon improvements.
Planos-electricos-de-casas.jpg
Mexico
Djordje
Moderator Emeritus

Single line diagrams, both 2D and 3D, are essential for the established MEP workflows anywhere in the world.

All the MEP lib parts should have LOD (or whatever it is called in your village) of 100 to show only the centerline, in 2D and 3D, 200 to show the geometry size, 300 to show the connections and hangers, and 400 to show pipes, trays, cables, connections, hangers in detail.

This is missing from the MEP modeler. The industry is not going to change overnight, as is obvious with BIM being around for 30ish years and still being considered new, so please provide the usable tool that can produce documents for the current industry, however "backwards" it can be.

Djordje



ArchiCAD since 4.55 ... 1995
HP Omen