cancel
Showing results for 
Search instead for 
Did you mean: 
cancel
Showing results for 
Search instead for 
Did you mean: 
Documentation
About Archicad's documenting tools, views, model filtering, layouts, publishing, etc.

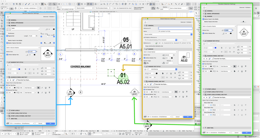
My built-in detail marker is WAY bigger than built-in section or elevation marker.

jakeh
Participant

Hi there, I cannot get the detail marker to match the size or font of the elevation/section markers.

 

I've checked all the settings and they appear to share the same values. Any thoughts how this could be happening?

 

 


Screen Shot 2022-10-21 at 4.28.28 PM.pngScreen Shot 2022-10-21 at 4.28.12 PM.png
1 REPLY 1
Patrick Hayes
Booster

The circle being larger than your section one is because the detail marker measurement is taken as the diameter of the circle, whereas the section marker measurement is point to point of the arrow rather than the circle diameter. You might find they match better if you make the detail marker diameter at around 30pt? 

As for the text size, that's weird, not sure why it's doing that?

 

Patrick

Associate | Law Architects
Melbourne, Australia