cancel
Showing results for 
Search instead for 
Did you mean: 
EN
cancel
Showing results for 
Search instead for 
Did you mean: 
Anonymous
Not applicable

linked marker without callout box

(new AC user!)

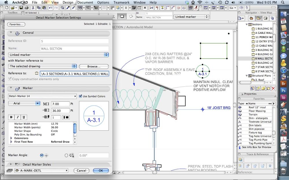
One of the things I really like so far about AC is how it allows me to cross-reference everything in the drawings set, and it updates the links automatically when I rearrange the layout sheets- section tags, elevation tags, etc. all keep pointing to the new correct locations. One item that I still haven't really figured out is how to reference a detail without graphically defining it. For example, in the old days, we used to type in a note

ROOF ASSEMBLY AND EAVE CONDITION SIM. 1/A3.1

But then if I moved that referenced drawing to sheet A3.3, I'd have to remember to update the note (and any like it) manually. My question then is, is there a way to use autotext to make the "1/A3.1" automatically linked to the layout in question? The closest I got was to use a Linked Marker object, which is pretty satisfactory. But I can't find a way to get it to give me just the marker, without a bounding box/callout graphic (see attached screenshot). Is there a setting that I need to make that happen?

Or, better yet, is there a way to get a linked text callout in the Text object?

thanks

LINKEDMARKER.jpg
3 Replies 3
Link
Graphisoft Partner
Graphisoft Partner
Right Click on the Drawing and select 'Set as Autotext Reference'.

Then when you're editing text you can find that reference as a Category for Autotext, and select a dozen different options.

Cheers,
Link.
David Maudlin
Rockstar
jfanjoy:

See also this thread:
Custom Detail Marker

David
David Maudlin / Architect
www.davidmaudlin.com
Digital Architecture
AC29 USA Perpetual • Mac mini M4 Pro OSX15 | 64 gb ram • MacBook Pro M3 Pro OSX14 | 36 gb ram
Anonymous
Not applicable
Link wrote:
Right Click on the Drawing and select 'Set as Autotext Reference'.

Then when you're editing text you can find that reference as a Category for Autotext, and select a dozen different options.

Cheers,
Link.
That is amazingly, awesomely, breathtakingly cool. Thanks for the info, guys.

Still looking?

Browse more topics

Back to forum

See latest solutions

Accepted solutions

Start a new discussion!