cancel
Showing results for 
Search instead for 
Did you mean: 
EN
cancel
Showing results for 
Search instead for 
Did you mean: 
ahmad525
Booster

not for construction - watermark

hey all.

so i have been searching for some time now to have the best practice when it comes to placing watermarks on preliminary drawings but it seems nothing work. 

-if i put watermark in master layout its appearing behind the views and i cant bring it to front. (fills and zones )

-copy watermark ontop of each layout is taking me some time (i have around 40 sheets)

-i created the watermark using 3d text and then explode 

 

so i was wondering if there is a way to place the watermark as a view on the layout but placing the view on all layout in one go. 

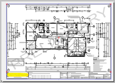
this is an example of how my watermark should be .

ahmad525_0-1695173722264.png

 

1 Solution

Accepted Solutions
AllanP
Expert

 

Layouts

AllanP_4-1695178884899.png

AllanP_1-1695179828401.png

blow up of layout with fills in it, text over top.

AllanP_2-1695179996350.png

 

 

 

 

Master

AllanP_3-1695178840187.png

 

Master Setting

AllanP_2-1695178569970.png

you can redesign the master so it doesn't have fills in it

then

Display Master Layout "Above Layout"

 

that is how we use it

 

yes, we did the 3D text, explode then turned into 25% transparent fill.

that was then saved as an object for latter use.

 

 

 

I have been using ArchiCAD continually since ArchiCAD 4.5
Member of Architalk since 2003, but missed the migration from Architalk to Graphisoft Communities. Melbourne, Australia

Go to post

6 Replies 6
Lingwisyer
Guru

If I was needing to do this frequently, I would script a basic object for it. It could just use a value direct from Project Info if it is across the board.

 

Or if by "Contract Purpose" you mean it is not an actual issue, you could go a bit further and use the layouts issue status to toggle your desired text. See this thread.

 

These are both a bit more involved given they require a little bit of GDL knowledge...

AC22-29 AUS 3200Help Those Help You - Add a Signature
Self-taught, bend it till it breaksCreating a Thread
Win11 | i9 10850K | 64GB | RX6600 Win11 | R5 2600 | 16GB | GTX1660
ahmad525
Booster

the main reason we need the watermark on top of the whole sheet and not on the side is to no tallow the pdf file to be used in an undesired way. 

would the layout issue place a text on the whole sheet ? from what i know it only applies to the revisions table that states (work in progress) 

AllanP
Expert

 

Layouts

AllanP_4-1695178884899.png

AllanP_1-1695179828401.png

blow up of layout with fills in it, text over top.

AllanP_2-1695179996350.png

 

 

 

 

Master

AllanP_3-1695178840187.png

 

Master Setting

AllanP_2-1695178569970.png

you can redesign the master so it doesn't have fills in it

then

Display Master Layout "Above Layout"

 

that is how we use it

 

yes, we did the 3D text, explode then turned into 25% transparent fill.

that was then saved as an object for latter use.

 

 

 

I have been using ArchiCAD continually since ArchiCAD 4.5
Member of Architalk since 2003, but missed the migration from Architalk to Graphisoft Communities. Melbourne, Australia
ahmad525
Booster

very helpful Allan !! thank you ! 

Lingwisyer
Guru

You can get it to say what ever you want it to say.

 

If LAYOUT_CURRENTREVISION_OPEN = 0 then
		Text2 0, 0, "<CURRENTISSUEDATE>"
	else
		Text2 0, 0, "W.I.P"
endIF

 

So in your case, you would probably leave the first TEXT2 blank, and set the second one to your not for construction statement, or a project autotext.

 

 

Ling.

 

ps. I completely looked over the fact that one of your issues was the displaying of master elements behind... as resolved by Allan.

AC22-29 AUS 3200Help Those Help You - Add a Signature
Self-taught, bend it till it breaksCreating a Thread
Win11 | i9 10850K | 64GB | RX6600 Win11 | R5 2600 | 16GB | GTX1660
ahmad525
Booster

thank you sir !

well i try to stay away from GDL editing as its a can of worm once you start working in GDL especially if you dont have the required skills. 

for me im not that good when it comes to coding. lol 

thanks for your input though 🙂 

Still looking?

Browse more topics

Back to forum

See latest solutions

Accepted solutions

Start a new discussion!