cancel
Showing results for 
Search instead for 
Did you mean: 
EN
cancel
Showing results for 
Search instead for 
Did you mean: 
HelenE
Booster

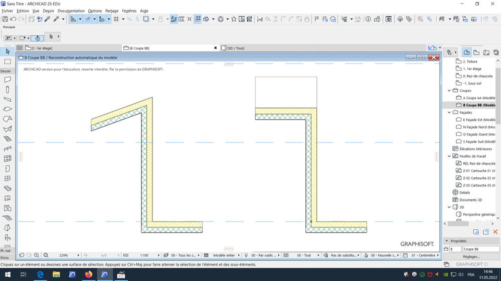
Intersection of composite roof and and composite wall in section View

Hello!

I searched the forum for a solution and all I found was a post from 2008.

I am trying to get a composite roof to intersect with a composite wall in section view. It's a section of a pool. Should I make the the composite roof a custom profile? Or make everything a custom profile? Thank you so much for your input.Screenshot_1.jpg

5 Replies 5

Composite & complex profiled walls are the same when talking about intersections with composite roof, the only way is to adjust building materials intersection priority values to determine which skin to penetrate or stop.

AC 29 INT 4006/WIN 11
AMD Ryzen 7 5800H with Radeon Graphics 3.20 GHz 16.0 GB
Laszlo Nagy
Community Admin
Community Admin

You could create a parametric profile for that vertical Wall piece and you could define the Profile to be the exact look you want to achieve in section. It may need to be parametric if the distance between the top roof and the bottom connecting structure is not constant.

Loving Archicad since 1995 - Find Archicad Tips at x.com/laszlonagy
AMD Ryzen9 5900X CPU, 64 GB RAM 3600 MHz, Nvidia GTX 1060 6GB, 500 GB NVMe SSD
2x28" (2560x1440), Windows 10 PRO ENG, Ac20-Ac29
HelenE
Booster

Thank you both for your replies, I will try them!

BrunoH
Expert

Hi,

Did you try to connect the wall to the roof with the "Connect / Connect to Roof/Shelf" command.

Material's intersection priority will be applied (see attatch)


Raccord_toit_mur.jpgResultat en coupe.jpg
ArchiCad 3.43 to 28
MacOS Monterey
HelenE
Booster

Thank you so much for taking the time to reply, I will try it!

 

Still looking?

Browse more topics

Back to forum

See latest solutions

Accepted solutions

Start a new discussion!