cancel
Showing results for 
Search instead for 
Did you mean: 
EN
cancel
Showing results for 
Search instead for 
Did you mean: 
Polar Bear
Booster

Wall extension

Hello All,

 

Beginner question:

 

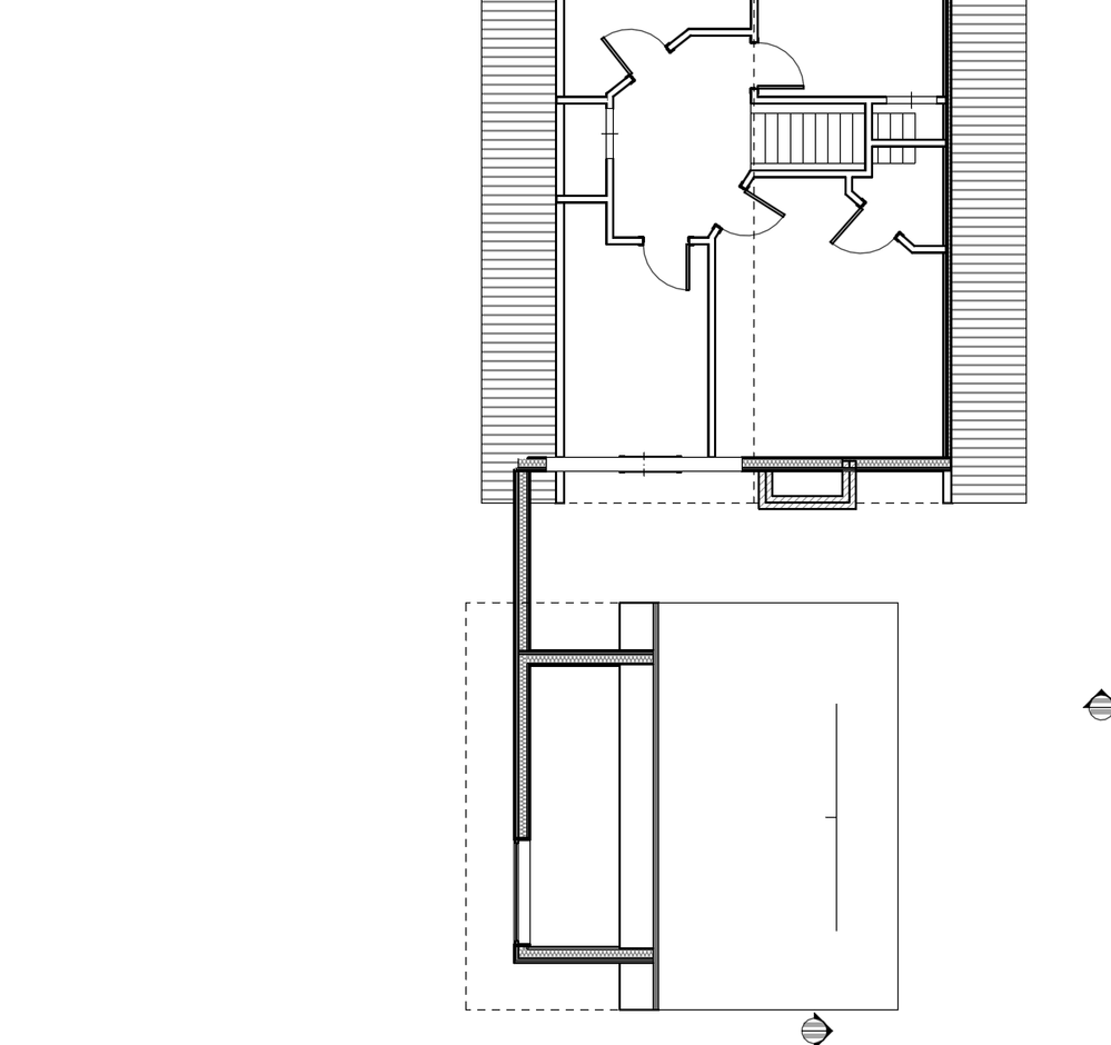
Problem 1: In the attached image.  On the roof, the wall should stop at the highlighted perpendicular wall. But it continues few feet till the end of the higher roof. Why?

 

Problem 2: on the upper floor view, the entire wall is visible while it is trimmed to the flat lower roof. Why is that ?

 

Thanks a lot!

pb


Screen Shot 2021-11-17 at 17.01.26.pngScreen Shot 2021-11-17 at 17.01.48.pngScreen Shot 2021-11-17 at 17.00.56.png

Archicad 25 - 5010
Macbook pro 13" /Big sur 11.4 + External 4K 27"
4 Replies 4
Steve Jepson
Virtuoso

Did you try not using trim to roof - use Roof for SEO instead ?

ArchiCAD 25 7000 USA - Windows 10 Pro 64x - Dell 7720 64 GB 2400MHz ECC - Xeon E3 1535M v6 4.20GHz - (2) 1TB M.2 PCIe Class 50 SSD's - 17.3" UHD IPS (3840x2160) - Nvidia Quadro P5000 16GB GDDR5 - Maxwell Studio/Render 5.2.1.49- Multilight 2 - Adobe Acrobat Pro - ArchiCAD 6 -25

Polar Bear
Booster

Yes, tries all that, it continues to the higher roof, as if the lower roof wasn't valid.  Revit has a function to work on wall profile, does Archicad have such function?

I thing i'll have to split the wall, lower/ higher portion.  

Thanks!

Archicad 25 - 5010
Macbook pro 13" /Big sur 11.4 + External 4K 27"

I would say model how it is built, that always keeps these things from happening.

Laszlo Nagy
Community Admin
Community Admin

Archicad does not have this same function as such, but in Archicad 25 it is now possible to create polygonal openings. So if you place a polygonal opening into a Wall, then you can modify the polygonal shape of the Opening to cut the top or bottom portion of the Wall to the exact shape you want.

In earlier versions this could be achieve by Solid Element Operations.

Loving Archicad since 1995 - Find Archicad Tips at x.com/laszlonagy
AMD Ryzen9 5900X CPU, 64 GB RAM 3600 MHz, Nvidia GTX 1060 6GB, 500 GB NVMe SSD
2x28" (2560x1440), Windows 10 PRO ENG, Ac20-Ac29

Still looking?

Browse more topics

Back to forum

See latest solutions

Accepted solutions

Start a new discussion!