Hi,
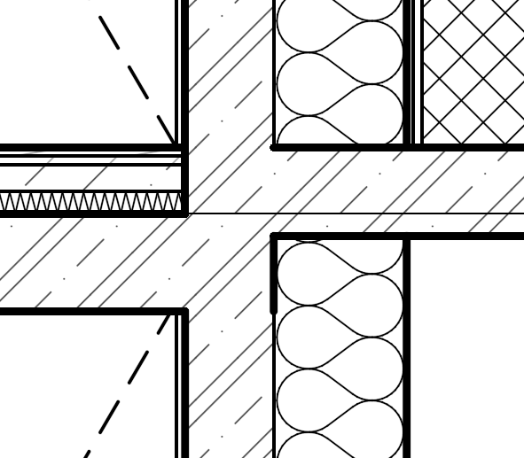
Is there any way to change setup of drawing a thick line where more elements meet?
Even if I set one of the elements to use a thin line, the thick line from the other element still overrides it.
I don't think this is related to priorities – the materials are set up correctly, and I don’t want certain layers (like insulation) to merge anyway. However, I do need the lines marked in yellow (in the screenshot) to appear thin in the section. Is there a way to display those junction lines with a thinner pen?
Thanks!
Operating system used: Windows 11
