cancel
Showing results for 
Search instead for 
Did you mean: 
EN
cancel
Showing results for 
Search instead for 
Did you mean: 
ahmad525
Booster

electrical type legend schedules

hey all,

i already have an electrical plan with legends schedules.

what im tying to do is to provide a (different option) as an upgrade pack with different lights and different number of power points and so on... and add this to the existing master plan.

what is the best option to do that in the same drawing without the need to create different layer combination and different scheduling etc... is there an option where i can add a view map drawing into the criteria of the schedule ? 

any input is welcome 🙂 

while we are on the same topic any advise on how to automate the calculation of the wattage ? 

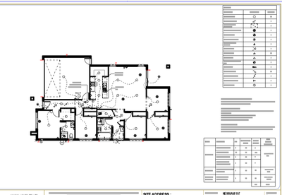
please see snippets below.

ahmad525_0-1688091026552.png

ahmad525_1-1688091041722.pngahmad525_2-1688091053423.png

 

thats what i have as standard. the upgrade pack will be in the same master plan but not included in the publishing set if not selected. 

i cant do renovation options as i already have renovation options for different facades. i really think archicad should implement the same way revit deal with design options where its not strict linked to (new/demo/existing) or at least allow users to add more renovations status. 

0 Replies 0

Still looking?

Browse more topics

Back to forum

See latest solutions

Accepted solutions

Start a new discussion!