cancel
Showing results for 
Search instead for 
Did you mean: 
cancel
Showing results for 
Search instead for 
Did you mean: 
Modeling
About Archicad's design tools, element connections, modeling concepts, etc.
SOLVED!

Column and Wall Join

Tazo Kikoria
Booster

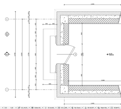
Hi there. I had some issue with Complex Profile Column and Wall Composite connection. I am doing this small gate casing outside the wall face. If the column profile has a sloped ending, the connection between the column and the wall on the floor plan is separated with the contour line. See photo:
Tazo_0-1750792556781.pngTazo_1-1750792579912.png

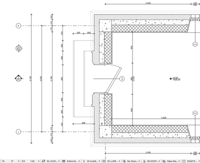
But If the column has a horizontal ending, the connection between the column and the wall on the floor plan becomes seamless. See photo:

Tazo_2-1750792607702.pngTazo_3-1750792643252.png

 

I want this seamless connection between the column and the wall but also want to keep the sloped ending of the column to finalize the outside casing.

 

 

 

Operating system used: Windows 11

1 ACCEPTED SOLUTION

Accepted Solutions
Solution
Barry Kelly
Moderator

Interesting problem.

The only fix I can see is to edit the edge of the complex profile and turn off that cut line.

That means that line will always be invisible when you use that profile.

 

BarryKelly_0-1750813543725.png

 

 

Barry.

One of the forum moderators.
Versions 6.5 to 27
i7-10700 @ 2.9Ghz, 32GB ram, GeForce RTX 2060 (6GB), Windows 10
Lenovo Thinkpad - i7-1270P 2.20 GHz, 32GB RAM, Nvidia T550, Windows 11

View solution in original post

2 REPLIES 2
Solution
Barry Kelly
Moderator

Interesting problem.

The only fix I can see is to edit the edge of the complex profile and turn off that cut line.

That means that line will always be invisible when you use that profile.

 

BarryKelly_0-1750813543725.png

 

 

Barry.

One of the forum moderators.
Versions 6.5 to 27
i7-10700 @ 2.9Ghz, 32GB ram, GeForce RTX 2060 (6GB), Windows 10
Lenovo Thinkpad - i7-1270P 2.20 GHz, 32GB RAM, Nvidia T550, Windows 11

Woah that looks like the best solution! Thank you!

Setup info provided by author