キャンセル
次の結果を表示 
次の代わりに検索 
もしかして: 
キャンセル
次の結果を表示 
次の代わりに検索 
もしかして: 
BMP10

BIM マネージャープログラム、11/4からライブクラス スタート。
受講生募集中!詳しくはこちらをご覧ください!

How to use Archicad - NEW
リニューアルしたHow to use Archicadです! みなさんのArchicadの使い方を教えてください!

鉄骨梁・柱の耐火被覆モデル化を少し簡単に!【旧サイトから転載】

How to use Archicad
Graphisoft
Graphisoft

※本記事は、旧サイト「How to use Archicad」より、Muuさん の2020年7月16日の記事を転載しています。

 

ARCHICAD22 から断面形状にパラメータを持たせることができるようになりました。鉄骨の柱や梁に耐火被覆込みの断面形状がデフォルトで追加されています。しかし、パラメータが多すぎて使いにくいという声も聞きます。そこでマキベエやケイカル板ではなく、日本で一番多く使われている「吹付ロックウール」について簡単に設定する方法を説明します。

H形鋼の柱
H形鋼の柱耐火被覆付きの柱断面形状がデフォルトに含まれないときは、梁のH形鋼断面形状を別名保存し、挿入起点をウェブ心に移動して保存すればOKです。

danmen01.png

<1>
デフォルトの断面形状では、耐火被覆の厚みの設定パラメータが12個あります。特別な場所に使用する場合を除き、通常、12個が異なる厚みになることはありません。25mm、45mm、65mm の決め打ちで3種の断面形状を作成しておくのも一つの方法です。こうすれば、ウェブとフランジの厚みを入力するだけで耐火被覆厚のパラメータは考えずにH形鋼柱が入力できます。

作成方法は、耐火被覆の塗りつぶしを選択して、下のように各被覆厚を変更します。

danmen02.png

全周の厚みを変更後、断面形状名を変更して保存します。

danmen03.png

<2>
もっとシンプルに・・・<1>のパラメータを整理します。12個の耐火被覆厚のパラメータを全て削除します。新しいパラメータを追加します。

danmen04.png

「+」をクリックして、12か所に同じパラメータを与えます。

danmen05.png

このとき、起点を考え、寸法の矢印と〇の方向に注意してください。
〇から▲に寸法を押さえます。〇は必ず鉄骨側になります。
耐火被覆の塗りつぶし全ての寸法が決定されると、下図のように緑の線が閉じます。

danmen06.png

実際に柱を配置するときは、以下のようになります。

danmen07.png

角形鋼管の柱
H形鋼と同様に、一つのパラメータに編集すると下図のようになります。

danmen08.png

danmen09.png

鉄骨と耐火被覆を分離して別レイヤーなどに入力したい場合
例えば、鉄骨は構造モデルに耐火被覆は意匠モデル入力し、ホットリンクを掛けて運用する場合など。鉄骨部分の塗りつぶしを削除して、耐火被覆のみの断面形状を作成します。このとき、幅ストレッチと高さストレッチは、鉄骨材のものにしておいた方が管理しやすいです。

danmen10.png

H形鋼の梁
一番多く使用されるのが、上部RCスラブで上フランジ上部に耐火被覆がない場合ですので、これについて説明します。その他、全周付き、耐火壁付きの場合などは応用して断面形状を作成します。

<1>
決め打ちタイプは、上フランジ上部厚みをゼロにして、柱と同様にして、耐火被覆厚:25mm、45mm、60mmの断面形状を作成します。

danmen11.png

danmen12.png

<2>
パラメータを1つにする場合
柱と同様に、デフォルトの厚みを全て削除します。
次に、新規でパラメータ「耐火被覆厚」を追加します。
パラメータの指定が未完なので、びっくりマークが付いています。

danmen13.png

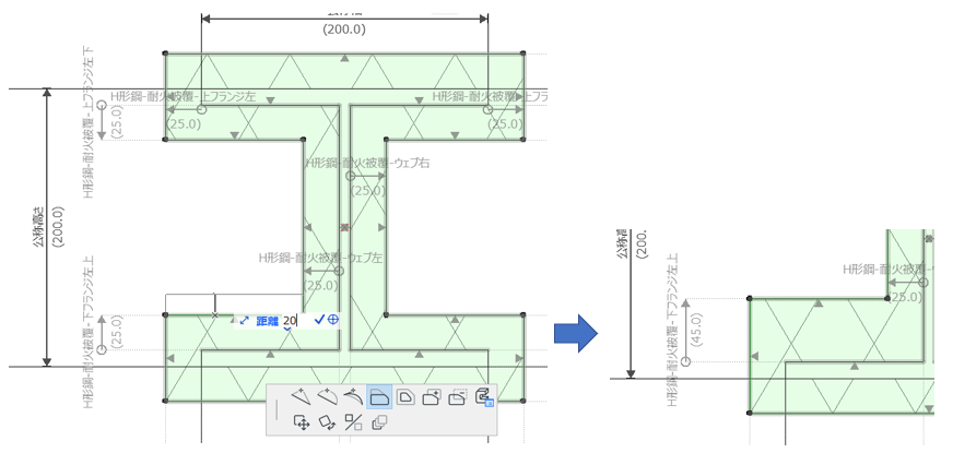
柱と同様に、耐火被覆の各厚みにパラメータを当ててゆきます。
設定が終わると、下図のように緑のラインに変わります。

danmen14.png

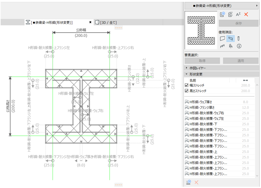
全ての設定が完了すると下図のようになり、断面形状を保存します。

danmen15.png

実際に配置してみます。
オフセット形状変更に入力する項目は、ウェブ・フランジの厚みと耐火被覆厚の3個です。

danmen16.png

0件の返信0