各ARCHICADプロジェクトは、次のアイテムで構成される複雑なデータベース:
- 3D設計要素: 壁、柱、窓、ドア、MEPシステム要素など
- 2D製図および文書化要素: 線、塗りつぶし、テキスト、ラベル、寸法、画像
- 非視覚的データ(メタデータとも呼ばれます): 2Dおよび3D要素に属性とプロパティとして割り当てられている分類、プロパティ、改修ステータス、熱透過率、音響仕様など。(これらの一部は視覚化できます。詳細は以下を参照してください。)
これはBIM(Building Information Model)と呼ばれるものです。ARCHICADでは、常に一度にフィルターされたBIMの要素とデータのセットのみが表示されます。BIMプロジェクトのコンテンツをフィルタリングして表現する方法はたくさんあります。常にフィルタリングを使用しています。画面に表示されるのは、仮想の建物全体ではありません。建物情報を表すには、主に2つの方法があります。それらが表す建物情報の種類に関しては、部分的に重複しています。
- 視覚的表現:建物とその要素のジオメトリは、平面図、断面図、立面図、3Dビュー、詳細、ワークシート、レンダリングされた画像に視覚的に表示されます。ARCHICADではこれらを使用して視覚化できるため、視覚情報には多くの場合、非視覚データの大部分も含まれます:
- 集計表: 建築要素の視覚化できないデータを表します。寸法(幅、長さ、高さ、面積、体積など)や特定のビュー(正面図、側面図など)などの視覚的に表現可能なパラメーターも含まれていることがよくあります。
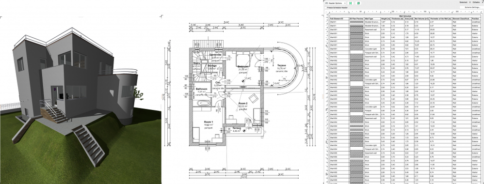
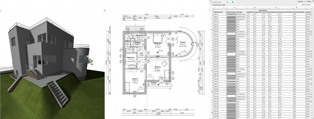
パースビューと平面図は視覚的な表現であり、集計表は建物情報の非視覚的な表現です。これらはすべて、同じモデルのさまざまなフィルター処理された情報のセットに基づいています:
ARCHICAD は、プロジェクトで表示される内容と非表示になるものをさまざまな方法で制御するのに役立ちます。建物情報の視覚化とフィルタリングに役立つツールを見てみましょう:
視覚的表現 - 何が見えますか?
モデル内の要素の可視性は、以下によって定義されます:
視覚的表現- 見えるものをどのように見ますか?
可視性は、上記の要因によって定義されます。可視要素の表示方法は、次のように定義されます。
以下の例では、リノベーションフィルターオプションが表示内容を制御し、グラフィックオーバーライドの組み合わせがそれらの表示方法を制御します:

一覧表 - 何が表示されますか?
スケジュールに表示されるコンテンツは、スケジュールスキーム設定で定義されます。基準セットは、集計表に表示される要素(たとえば、ドアまたは特定のフロアのドアなど)をフィルタリングします。フィールドでは、選択した要素について表示する情報を選択できます(サイズ、数量、位置、耐火性評価など)。
