キャンセル
提案をオンにする
自動提案では、入力時に可能な一致が提案されるので検索結果を素早く絞り込むことができます。
次の結果を表示 
次の代わりに検索 
もしかして: 
  • Fóruns
    • Instalação e atualização
    • Licença
    • Modelagem
    • Bibliotecas e Objetos
    • Documentação
    • Visualização e BIMx
    • Gerenciamento de dados e BIM
    • Teamwork e BIMcloud
    • Interoperabilidade
    • Discussões gerais
    • Nossa comunidade
  • Artigos
    • Instalação e atualização
    • Licença
    • Introdução ao Archicad
    • Modelagem
    • Bibliotecas e Objetos
    • Documentação
    • Visualização e BIMx
    • Gerenciamento de dados & BIM
    • Teamwork e BIMcloud
    • Interoperabilidade
    • Nossa comunidade
    • MEP
  • Building Together
    • Insights
    • Webinars
    • Vagas de trabalho
    • Lista de Desejos
    • Desafios
      • Sua melhor Opção de Projeto
      • Minha Graph História
    • Grupos de usuários
      • Estudantes Embaixadores
      • Sugestões Archicad BRA
    • Roadmap
    • Graphisoft Technology Preview Program 2025 BRA
      • Forum
      • Guia de Novos Recursos
      • Downloads
  • Ajuda do Produto
search
ヘルプサインイン
キャンセル
提案をオンにする
自動提案では、入力時に可能な一致が提案されるので検索結果を素早く絞り込むことができます。
次の結果を表示 
次の代わりに検索 
もしかして: 
  • 日本コミュニティ
  • :
  • フォーラム
  • :
  • ドキュメント
  • :
  • 意匠図Template_#1 建物求積図をArchicad内部で完結させる。
オプション
  • RSS フィードを購読する
  • トピックを新着としてマーク
  • トピックを既読としてマーク
  • このトピックを現在のユーザーにフロートします
  • ブックマーク
  • この話題を購読する
  • ミュート
  • 印刷用ページ
ドキュメント
Archicadでドキュメントツール、ビュー、レイアウト、発行など図面化に関するフォーラムです。

意匠図Template_#1 建物求積図をArchicad内部で完結させる。

M_KAMITAKAHARA
M_KAMITAKAHARA
Contributor
オプション
  • 新着としてマーク
  • ブックマーク
  • 購読
  • ミュート
  • RSS フィードを購読する
  • ハイライト
  • 印刷
  • 不適切なコンテンツを報告

‎2025-07-18 11:07 AM

‎2025-07-18 11:07 AM

僕は現在社内用の設計・申請テンプレートを開発しており、

社内には都度知識や使い方を共有していますが、

tokunagaさんの数式日記を拝見しまして、

せっかくなら日記形式でこちらにもアップさせていただくと、参考になる部分もあるかも??と考え、

記録を(とりあえず)共有してみることにしました。

(フォーラムの趣旨と異なる部分があれば、すみませんです。。。もしそうであればお知らせください。)

図面単位で上げていこうかなと思います。今回は建物求積図です。

 

構成について

 

 250716_建物求積図について_ページ_01.jpg

250716_建物求積図について_ページ_02.jpg

 

求積図は

  • 延床面積求積図
  • 延床面積求積図(容積率対象外)
  • 建築面積求積図

求積表は

  • 延床面積求積表1-1~1-9
  • 延床面積求積表(容積率対象外)2-1~2-9
  • 建築面積求積表3
  • 建物面積求積表4

から成ります。

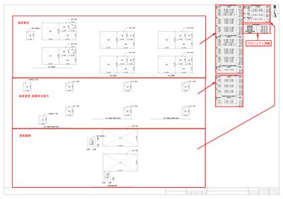
ビュー一覧はこんな感じ。

 

image.png

 

ワークフローとしては大まかに以下の6ステップを踏みます。

1.面積計算オブジェクトを入れ、寸法を合わせる。(頂き物です)

 

250716_建物求積図について_ページ_03.jpg

 

 

2.庇の線や棟名称を入れる。

 

250716_建物求積図について_ページ_05.jpg

 

3.プロパティを調整する。

 

250716_建物求積図について_ページ_06.jpg

 

 

4.一覧表が足りなければ複製して作成。

250716_建物求積図について_ページ_08.jpg

 

 

5.図面を更新してレイアウトを整える。

 

250716_建物求積図について_ページ_09.jpg

 

6.集計内容を元に、求積表4に表したい値をプロジェクト情報に入れて完了。 

 

image1.png

 

 

TIPs

建物求積図テンプレートの内容について、こまごまとした検討を記録します。

⓵デザインオプションによる求積情報管理

 

image2.png

 

  • デザインオプションを利用した理由は、レイヤー名やお気に入り情報等の既存のテンプレ構成を保つために利用しました。お気に入りにデザインオプションステータスが込められないのが悩ましいです。

②一覧表とプロパティについて

  • Archicadの一覧表は、総計と小計までは出せるが、3段階小計はできない。
  • 従って層ごと、棟ごと、申請単位合計の3段階小計の一覧表は普通に一覧表をつくるとできない。しかし、申請図書 四、五、六面で必要になるので、設計からシームレスに出せると良いし、それができればうれしいなあと色々考えた結果、
  • 一覧表を組み合わせてつくれば良い!という結論に至りました。
 

image3.png

 

  • 印刷物をみるとしれっと表が出来上がっていますが、二段階目のところで一覧表が分割されており、三段階目の総延床面積は別の一覧表の最後の行だけ表示し、その他はクロップしてしまうことで実現しています。
 

image4.png

 

 

  • 実際はここを切り出しているだけ。

③一覧表、しばしばレイアウト崩れる問題

 

image5.png

 

  • 三段階小計の一覧表を疑似的に作る弊害として出てくるのが一覧表メンテ問題です。値を入れなおすと一覧表のレイアウトが崩れることは、稀に良くあると思います。一つの一覧表がずれるのも嫌ですが、複数でずれられると、適正な位置に揃える作業と、そもそも基準となる適正を揃える作業が出現し、困難を極めます。どうにかメンテナンスを楽にしたいと考えるわけです。
  • 前程として、崩れた時の直した方は2つ。数値指定か最小幅最小高さ指定。後者の場合は数値を覚える必要がなく楽です。したがって後者で実装する方法を考えます。
  • 各項目の幅の最大値が動く時、一覧表の幅が動く。従って各項目の幅の最大値が動かなければ行の幅を最小化した時にその幅は動かない。
  • 見出しはいつもあるので、見出しが最大幅をとるようにすれば良い。
  • スペーサーを入れればよい!!

     

    image6.png
 

 

④GDLオブジェクトのプロパティは普通にフィールドを検索するだけでは出せない。

  • 意外と落とし穴だったのがこれで。計算式と面積は絶対に出したいのでいつものところで検索をかけたのですが、出てこず。

     
    250716_建物求積図について_ページ_15.jpg250716_建物求積図について_ページ_16.jpg 

      

     

  • ググってもそれらしい答えはでてこず。。検索の限りを尽くした結果、海外BIM系Youtuberの動画に辿り着き、▽マークを押下したら出せるよという何とも拍子抜けな結末でした。普通に一日程あーでもないこーでもないを繰り返したと思うのですが、我々初心者の一日が削れないように願って、ここに情報を残します。
    参考:https://www.youtube.com/watch?v=tfrzd4K8X9o&t=713s

 

250716_建物求積図について_ページ_17.jpg

 

 

⑤一覧表の基準にオプションセットデータを用いたとき、判断部分に「含む」を利用できない問題

 

スクリーンショット 2025-07-18 101454.png

スクリーンショット 2025-07-18 101507.png

 

  • 基準に使いたいので入力にブレが無いようにオプションセット化はしたいが、
  • 枝番は無視したい

という相反するニーズが図面上発生したのですが、無駄に数式化することで、判断部分に無事「含む」が出せるようになりました。

 

スクリーンショット 2025-07-18 101541.png

 

 

「数式」というデータ形式をとるということはブレのないデータであることを保証しない→「含む」が選択可能になっている、ということなのでしょうか。真偽値やオプションセットにはないので、そのような仮説で理解をしています。

まとめ

図面の枠組み一つ作るのも大変だなと実感した今回の建物求積図テンプレート開発でした。

個人的に気に入った発明(というと大袈裟ですが)は⓶、③で。この辺を組み合わせると、

今までできなかった深さの一覧表が、比較的メンテしやすく作れるようになるので、

他の表にも応用が利くアイデアかなと思っています。

 

改善案やご感想等ありましたらよろしくお願いします!

ラベル:
  • ラベル:
  • 図面
6 件のいいね!
返信
  • すべてのフォーラムトピック
  • 前のトピック
  • 次のトピック
0件の返信0
返信を見逃したくないですか?
トピックを購読する
関連する記事
  • 自由棚を家具図にできないものか。。 in モデリング
  • Archicad オンラインテンプレート(Windows環境)不具合について in フリートーク
  • Archicad 29 教育版のライセンス取得について in インストール&アップデート
  • 第58回 #BIM相談室 配信情報掲載 in フリートーク
  • パーテーションの作成方法 in モデリング

回答が見つかりませんでしたか?

このフォーラムで
他の記事をチェック

フォーラムへ戻る

最新の解決策をチェック

採用された解決策

新しいディスカッションを始める

投稿する

フォーラム

  • インストール&アップデート
  • ライセンス
  • モデリング
  • ライブラリ&オブジェクト
  • ドキュメント
  • ビジュアライズ
  • BIMx
  • プロジェクト管理
  • パラメトリックデザイン
  • サスティナブルデザイン
  • チームワーク&BIMcloud
  • OPEN BIM
  • フリートーク
  • Our Community

ナレッジベース

  • インストール&アップデート
  • ライセンス
  • Archicadをはじめよう
  • モデリング
  • ライブラリ&オブジェクト
  • ドキュメント
  • ビジュアライズ
  • BIMx
  • プロジェクト管理
  • チームワーク&BIMcloud
  • OPEN BIM
  • Communityの使い方
  • MEP

Building Together

  • Graphisoft Insights
  • Archicadユーザーグループ
  • USERFEST
  • チャレンジ(コンテスト)
  • BIM相談室 配信情報
  • How to use Archicad - NEW
  • ウィッシュリスト
  • 製品ロードマップ
  • Graphisoft テクノロジープレビュープログラム 2025
Powered by Khoros
Copyright © 2025 GRAPHISOFT. All rights reserved.
  • プライバシーポリシー
  • 利用規約
  • コミュニティ投稿ガイドライン

GraphisoftはNemetschekのグループ企業です