キャンセル
提案をオンにする
自動提案では、入力時に可能な一致が提案されるので検索結果を素早く絞り込むことができます。
次の結果を表示 
次の代わりに検索 
もしかして: 
  • フォーラム
    • インストール&アップデート
    • ライセンス
    • モデリング
    • ライブラリ&オブジェクト
    • ドキュメント
    • ビジュアライズ
    • BIMx
    • プロジェクト管理
    • パラメトリックデザイン
    • サスティナブルデザイン
    • チームワーク&BIMcloud
    • OPEN BIM
    • フリートーク
    • Our Community
  • ナレッジベース
    • インストール&アップデート
    • ライセンス
    • Archicadをはじめよう
    • モデリング
    • ライブラリ&オブジェクト
    • ドキュメント
    • ビジュアライズ
    • BIMx
    • プロジェクト管理
    • チームワーク&BIMcloud
    • OPEN BIM
    • Communityの使い方
  • Building Together
    • Insights
    • Archicadユーザーグループ
      • ユーザーグループ紹介
      • ユーザーグループからのお知らせ
      • Archicadユーザーグループマガジン
      • 施工ユーザーグループ メンバー専用
      • ワークフロー研究会 メンバー専用
    • USERFEST
      • USERFEST 2022
      • USERFEST 2023
      • USERFEST 2024
      • USERFEST 2025
    • チャレンジ(コンテスト)
      • Your Best Design Option
    • BIM相談室 配信情報
    • How to use Archicad - NEW
    • ウィッシュリスト
    • ロードマップ
    • Graphisoft テクノロジープレビュープログラム 2025
      • フォーラム
      • 新機能ガイド
      • ダウンロード
  • 製品ヘルプ
  • Service & Support
    • スキルアップ動画
search
ヘルプサインイン
キャンセル
提案をオンにする
自動提案では、入力時に可能な一致が提案されるので検索結果を素早く絞り込むことができます。
次の結果を表示 
次の代わりに検索 
もしかして: 
BMP10

BIM マネージャープログラム、11/4からライブクラス スタート。
受講生募集中!詳しくはこちらをご覧ください!

  • 日本コミュニティ
  • :
  • フォーラム
  • :
  • ドキュメント
  • :
  • RC造の軸組図的表現の方法
オプション
  • RSS フィードを購読する
  • トピックを新着としてマーク
  • トピックを既読としてマーク
  • このトピックを現在のユーザーにフロートします
  • ブックマーク
  • この話題を購読する
  • ミュート
  • 印刷用ページ
ドキュメント
Archicadでドキュメントツール、ビュー、レイアウト、発行など図面化に関するフォーラムです。

RC造の軸組図的表現の方法

Kotetsu
Kotetsu
Expert
オプション
  • 新着としてマーク
  • ブックマーク
  • 購読
  • ミュート
  • RSS フィードを購読する
  • ハイライト
  • 印刷
  • 不適切なコンテンツを報告

‎2024-03-14 04:12 PM

‎2024-03-14 04:12 PM

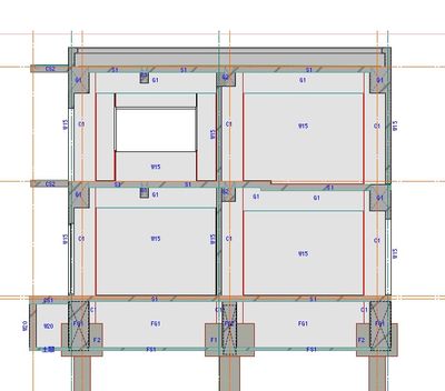
設計図の軸組図のような、通り芯上で切断した図を作ろうとしています。

 

▼だいたいこんな感じが目標です。

Kotetsu_0-1710399849997.png

上記は柱・基礎・梁・スラブで別のビルディングマテリアルを設定しています。

それぞれ分けるのも面倒なので、同一のビルディングマテリアルで同じ表現ができないでしょうか。

 

▼同一のビルディングマテリアル(コンクリート)で作成すると下記のように部材間が包絡されてモヤッとした表現になってしまいます。

Kotetsu_1-1710399972266.png

 

▼レイヤーの交差グループ番号を0にすることで解決するかと思いきや、必要ない線まで出てしまいます。

Kotetsu_3-1710400199283.png

 

▼表現の上書きで部材毎に色分けすれば部材の切れ目はわかりますが、やはり線で分けたいところです。

Kotetsu_4-1710400323171.png

 

なにか良いアイディアがあれば教えて下さい!

 

Operating system used: Windows 10 22H2


▼ウィッシュリスト(投票が集まるとGSの検討対象になります。賛同してくださる方は投票をお願いします!)
「仕上げツール」を本体機能に | 「メッシュから屋根を作成」を本体機能に | フロアレベルからメッシュ点高度 | 躯体以外を表示 | メッシュ頂点に一括ラベル | 断面形状パラメータパレット | STB取込みで梁端部を柱面 | RFAをパラメトリック | レイヤーセットを現在の設定で更新 | ひとつひとつの線の線種/色/表示非表示を変更できる機能(ラインワーク) | 「線として表示」としてもBIMx上で通り芯を表示 | 部材の始点/終点座標を一覧表とプロパティで取得 | 通り芯と要素の連動 | 表現の上書きに数式
Win10 / 13th Gen Corei7 / 32GB RAM / RTX2000Ada Laptop
AC17 - 27 / ACUG
ラベル:
  • ラベル:
  • 図面
  • 断面図
2 件のいいね!
返信
  • すべてのフォーラムトピック
  • 前のトピック
  • 次のトピック
2件の返信2
tada
tada
Expert
オプション
  • 新着としてマーク
  • ブックマーク
  • 購読
  • ミュート
  • RSS フィードを購読する
  • ハイライト
  • 印刷
  • 不適切なコンテンツを報告

‎2024-03-15 09:04 AM

‎2024-03-15 09:04 AM

当社は軸組図は逆に通り芯ではなく

少し離したところから切るようにしています。

理由は施工では通り芯上なく、直角にささってくる梁や壁が重要だからです。

 

あと、柱も梁も壁も断面形状で書きますが

ビルマテは同じコンクリートですが、材質上書きで区別をしていますので

同面の部材でもラインが入るようにしています。

 

どうでしょうか?このやり方!


スクリーンショット 2024-03-14 162207.jpg

 

スクリーンショット 2024-03-15 085527.jpg

 

スクリーンショット 2024-03-14 162238.jpg

 

5 件のいいね!
返信
Kotetsu
Kotetsu
Expert
オプション
  • 新着としてマーク
  • ブックマーク
  • 購読
  • ミュート
  • RSS フィードを購読する
  • ハイライト
  • 印刷
  • 不適切なコンテンツを報告

‎2024-03-15 11:08 AM

‎2024-03-15 11:08 AM

ありがとうございます!

 

> 当社は軸組図は逆に通り芯ではなく

> 少し離したところから切るようにしています。

> 理由は施工では通り芯上なく、直角にささってくる梁や壁が重要だからです。

 

確かに・・・。

施工的には直交する梁も見たいですね。

変に今の軸組表現にとらわれない方が良いかもしれません。

なんなら柱の裏側の梁も表示したい(柱を透明にすればできるかも?🤔)です。

 

断面形状の方も試してみます!

 


▼ウィッシュリスト(投票が集まるとGSの検討対象になります。賛同してくださる方は投票をお願いします!)
「仕上げツール」を本体機能に | 「メッシュから屋根を作成」を本体機能に | フロアレベルからメッシュ点高度 | 躯体以外を表示 | メッシュ頂点に一括ラベル | 断面形状パラメータパレット | STB取込みで梁端部を柱面 | RFAをパラメトリック | レイヤーセットを現在の設定で更新 | ひとつひとつの線の線種/色/表示非表示を変更できる機能(ラインワーク) | 「線として表示」としてもBIMx上で通り芯を表示 | 部材の始点/終点座標を一覧表とプロパティで取得 | 通り芯と要素の連動 | 表現の上書きに数式
Win10 / 13th Gen Corei7 / 32GB RAM / RTX2000Ada Laptop
AC17 - 27 / ACUG
2 件のいいね!
返信

設定情報は作成者によって提供されています。

  • Archicad_Version_27
返信を見逃したくないですか?
トピックを購読する
Ignite Graphisoft Conference 2025 - October 6-8, 2025 - Budapest
関連する記事
  • Archicad 25でRhino7(6)とGrashopper Live connectionsを使用すると「着信APIコマンドを実行中」から動かなくなる in インストール&アップデート
  • アイコンと座標情報が重なって読み取れません in インストール&アップデート
  • #BIM相談室 閲覧ページ変更のお知らせ in Our Community
  • スラブ 平面図表示の設定 in モデリング
  • 曲線を等分割する方法を教えてほしいです。 in ライブラリ&オブジェクト

回答が見つかりませんでしたか?

このフォーラムで
他の記事をチェック

フォーラムへ戻る

最新の解決策をチェック

採用された解決策

新しいディスカッションを始める

投稿する

フォーラム

  • インストール&アップデート
  • ライセンス
  • モデリング
  • ライブラリ&オブジェクト
  • ドキュメント
  • ビジュアライズ
  • BIMx
  • プロジェクト管理
  • パラメトリックデザイン
  • サスティナブルデザイン
  • チームワーク&BIMcloud
  • OPEN BIM
  • フリートーク
  • Our Community

ナレッジベース

  • インストール&アップデート
  • ライセンス
  • Archicadをはじめよう
  • モデリング
  • ライブラリ&オブジェクト
  • ドキュメント
  • ビジュアライズ
  • BIMx
  • プロジェクト管理
  • チームワーク&BIMcloud
  • OPEN BIM
  • Communityの使い方

Building Together

  • Graphisoft Insights
  • Archicadユーザーグループ
  • USERFEST
  • チャレンジ(コンテスト)
  • BIM相談室 配信情報
  • How to use Archicad - NEW
  • ウィッシュリスト
  • 製品ロードマップ
  • Graphisoft テクノロジープレビュープログラム 2025
Powered by Khoros
Copyright © 2025 GRAPHISOFT. All rights reserved.
  • プライバシーポリシー
  • 利用規約
  • コミュニティ投稿ガイドライン

GraphisoftはNemetschekのグループ企業です